K prodeji, Jiné komer. prostory, Ostrava, Oblá

 
 
 
exkluzivně
 
Lokalita:
Ostrava, Oblá
 
 
Cena:
8 490 000 Kč / za nemovitost
 
 
Nabídněte prodejci Vaši cenu 
 
 

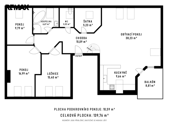
TOP loftový byt 4+kk s terasou a výhledy – klidná lokalita plná zeleně, ulice Oblá, Ostrava . Nabízím Vám ke koupi mimořádný loftový byt 4+kk s vlastní terasou, 139,76 m2 , situovaný v 3. patře moderního bytového domu v jedné z nejklidnějších lokalit Ostravy – na ulici Oblá, kde nenajdete žádné rušivé paneláky, jen zeleň, soukromí a příjemnou atmosféru . Byt nabízí promyšlenou dispozici, dostatek přirozeného světla, otevřený prostor a unikátní styl, který se v okolí často nevidí. Hned při vstupu Vás okouzlí velkorysý, prosvětlený obývací pokoj s kuchyní, který plynule navazuje na soukromou terasu s výhledy do zeleně – ideální místo pro ranní kávu, čtení nebo večerní relax. Z obývacího prostoru vede stylové schodiště do loftu, který v současnosti slouží jako klidná pracovna, ale snadno se může proměnit v knihovnu, prostor pro jógu, relax nebo další ložnici. Byt dále disponuje dětským pokojem, který nabízí dostatek místa pro hru i odpočinek, a třetím pokojem, který je nyní zařízen jako pracovna. Vše doplňuje moderní koupelna s vanou i sprchovým koutem a samostatné WC. Tento byt je skutečně TOP nabídkou, jaká se v této lokalitě objevuje jen výjimečně – spojuje komfort, klid, styl a praktické bydlení pro rodinu, pár i jednotlivce. Shrnutí výhod: 🔹 Dispozice 4+kk s otevřeným loftovým prostorem 🔹 Vlastní terasa s výhledy do zeleně 🔹 Loft jako pracovna, knihovna nebo relax zóna 🔹 Velký, prosvětlený obývací pokoj s kuchyní a s přímým vstupem na terasu 🔹 Dětský pokoj + samostatná pracovna 🔹 Moderní koupelna s vanou i sprchou, samostatné WC 🔹 Klidná ulice Oblá – bez paneláků, bez hluku, s množstvím zeleně 🔹 Výborná dostupnost – pár minut pěšky na tramvaj i k obchodům Pokud hledáte byt s duší, výhledy, soukromím a atmosférou, který Vám poskytne prostor pro život i práci, jste na správném místě. Tento byt je spojením stylu, klidu a pohodlí – a je připravený právě pro Vás. 📞 Pro více informací nebo sjednání prohlídky mě neváhejte kontaktovat. Ráda Vás tímto výjimečným bytem osobně provedu. Jitka Fröhlichová Vaše realitní makléřka s citem pro prezentaci a detail Prodávající si vyhrazuje právo vybrat kupujícího na základě jím zvolených kritérií.

 
zobrazit více
 
 
 


Doplňující informace:

ID inzerátu ESO: 4373498
Inzerát vydán: 03.12.2025
Inzerát aktualizován: 01.04.2026
ID zakázky v RK: 428513
Budova je z: Cihla
Stav: Velmi dobrý
Umístění: Velmi dobrý
Užitná plocha: 139 m2
Zastavěná plocha: 190 m2
Energetická náročnost budovy:
G - Mimořádně nehospodárná
 
 

 

Bleskový dotaz makléři

K prodeji, Jiné komer. prostory, Ostrava, Oblá

Text dotazu *
Váš telefon *
Váš e-mail
Zobrazit kontaktní informace
Odeslat
 
 
 
 

Ve schránce je 0 inzerátů.

zobrazit celou schránku
 
 

Nalezli jsme dalších 9 nemovitostí v podobné ceně.

 
 
reklama