K prodeji, Ubytování, Strážný, Řasnice

 
 
 
Lokalita:
Strážný, Řasnice
 
 
Cena:
18 000 000 Kč / za nemovitost
 
plus provize RK
 
Nabídněte prodejci Vaši cenu 
 
 

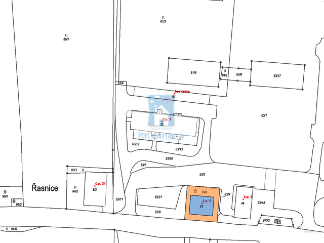
Nabízíme k prodeji exkluzivní investiční příležitost v části obce Řasnice – Strážný, okres Prachatice. Tato cihlová patrová budova se čtyřmi podlažími ve velmi dobrém stavu nabízí neuvěřitelný potenciál pro investory hledající výnosné projekty. Bytový dům je v současné době obsazen nájemníky a nabízí stabilní zdroj příjmů. Celková zastavěná plocha činí 198 m² a užitná plocha 870 m². Nemovitost disponuje celým spodním patrem jako nebytovými prostory, což rozšiřuje možnosti jejího komerčního využití. V patrech se nachází 10 bytových jednotek, které zajišťují pravidelné nájemní příjmy. Díky výhodné poloze je nemovitost atraktivní jak pro nájemní bydlení, tak pro podnikatelské záměry. K objektu navíc náleží parkoviště o rozloze 365 m², což zvyšuje jeho komfort a přidanou hodnotu. Budova je napojena na kanalizaci a disponuje přívodem plynu přímo v budově. Tato nemovitost představuje skvělou investiční příležitost s vysokým výnosovým potenciálem a možností dalšího rozvoje. V případě zájmu o prohlídku nás neváhejte kontaktovat.

 
zobrazit více
 
 
 


Doplňující informace:

ID inzerátu ESO: 4232107
Inzerát vydán: 22.03.2024
Inzerát aktualizován: 27.10.2025
ID zakázky v RK: 2221
Budova je z: Cihla
Stav: Velmi dobrý
Umístění: Velmi dobrý
Užitná plocha: 870 m2
Plocha pozemku: 870 m2
Zastavěná plocha: 198 m2
Energetická náročnost budovy:
G - Mimořádně nehospodárná
 
 

 
 
 

Bleskový dotaz makléři

K prodeji, Ubytování, Strážný, Řasnice

Text dotazu *
Váš telefon *
Váš e-mail
Zobrazit kontaktní informace
Odeslat
 
 
 
 

Ve schránce je 0 inzerátů.

zobrazit celou schránku
 
 

Nalezli jsme dalších 5 nemovitostí v podobné ceně.

 
 
reklama