K prodeji, , 60 m2

 
 
 
Lokalita:
 
 
Cena:
19 900 000 Kč / za nemovitost
 
 
uvedená cena je: bez provize Nabídněte prodejci Vaši cenu 
 
 

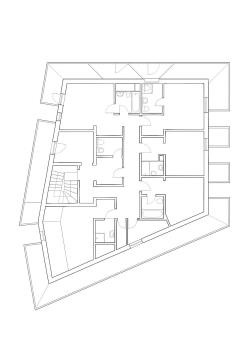
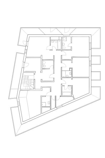
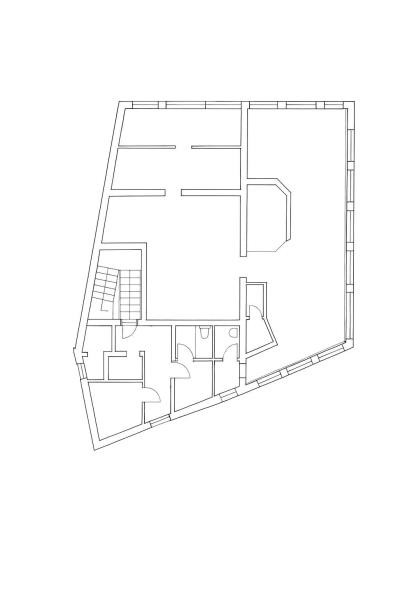
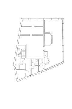
Nabízíme k prodeji zavedený penzion OÁZA v samotném srdci Luhačovic – lázeňského města s celoroční návštěvností. Nemovitost je nyní provozována jako penzion s pěti garsonkami a restaurací, avšak svým dispozičním řešením a kapacitou nabízí ideální potenciál pro přeměnu na moderní apartmánový dům. Investiční záměr – návrh nové dispozice Přízemí: 2 komfortní apartmány 2+KK Patro: 6 garsoniér 1+KK Současná hrubá stavba i technické řešení objektu jsou zcela dostatečné pro tuto změnu užívání. Záměr nevyžaduje rozsáhlou přestavbu, spíše modernizaci a úpravu interiérů. Současný stav penzionu 5 dvoulůžkových pokojů a 1 apartmán (cca 15 lůžek) Každý pokoj má vlastní koupelnu, TV, lednici a WiFi Restaurace s kuchyní a letní zahrádkou Možnost pořádání rodinných a firemních akcí Parkování možné v bezprostředním okolí objektu Penzion dlouhodobě hodnocen velmi dobře (Booking 8,4/10, Slevomat 4,3/5) Hlavní přednosti Výjimečná poloha v centru Luhačovic, pár minut chůze od lázeňské kolonády Stabilní návštěvnost díky lázeňskému ruchu a turistice Domácí atmosféra, klidné prostředí a udržovaný objekt Možnost parkování před objektem i v okolí Zahrádka a venkovní posezení vhodné pro hosty i komerční využití Pro investora Tento objekt představuje jedinečnou příležitost získat nemovitost v nejžádanější části Luhačovic, s možností navýšení výnosu prostřednictvím konverze na apartmánový dům. Lokalita, dispozice a kapacita domu zajišťují dlouhodobě vysokou obsazenost i zajímavou návratnost investice. Detailní ekonomické údaje o výnosech, provozních nákladech a předpokladech konverze jsou k dispozici na vyžádání. Po přečtení základních informací mě neváhejte kontaktovat pro více detailů nebo sjednání osobní prohlídky.

 
zobrazit více
 
 
 


Doplňující informace:

ID inzerátu ESO: 4365273
Inzerát vydán: 21.10.2025
Inzerát aktualizován: 03.12.2025
ID zakázky v RK: 7278360
Budova je z: Smíšená
Stav: Velmi dobrý
Vlastnictví: Osobní
Umístění: Velmi dobrý
Nebytová plocha: 60 m2
Plocha pozemku: 600 m2
Plyn: Zaveden
Voda: Vodovod
Užitná plocha: 490 m2
Zastavěná plocha: 210 m2
Energetická náročnost budovy:
D - Méně úsporná
 
 

 

Bleskový dotaz makléři

K prodeji, , 60 m2

Text dotazu *
Váš telefon *
Váš e-mail
Zobrazit kontaktní informace
Odeslat
 
 
 
 

Ve schránce je 0 inzerátů.

zobrazit celou schránku
 
 

Nalezli jsme dalších 220 nemovitostí v podobné ceně.

 
 
reklama