K prodeji, Rodinný dům, 68 m2, Nová Ves

 
 
 
Lokalita:
Nová Ves
 
 
Cena:
4 999 000 Kč / za nemovitost
 
V případě více zájemců může RK využít pro výběr kupujícího formu aukce.
 
uvedená cena je: včetně provize Nabídněte prodejci Vaši cenu 
 
 

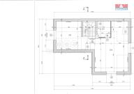
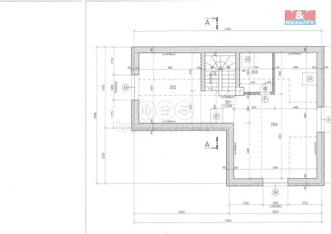
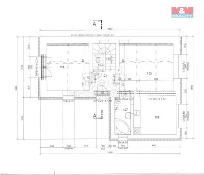
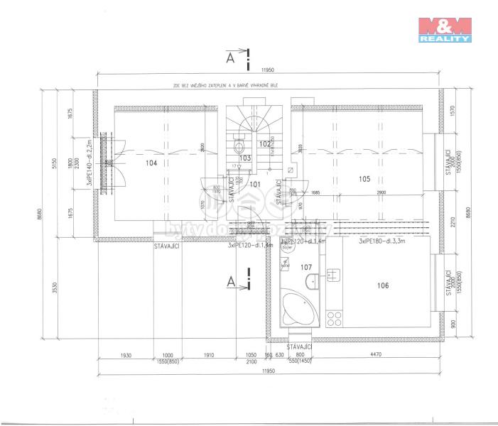
Nabízíme k prodeji rodinný dům o dispozici 4+1 v atraktivní lokalitě Nová Ves u Prahy. Tento samostatně stojící cihlový dům se nachází v centru obce a je obklopen uzavřeným dvorem, který zajišťuje soukromí a klid. Dům je ve fázi rozsáhlé rekonstrukce, což nabízí jedinečnou příležitost přizpůsobit si interiér dle vašich představ. Užitná plocha domu činí zatím v přízemí 68 m² a v nadzemních podlaží si můžete dispozici dále upravit. K dispozici je také pozemek o výměře 233 m². Výborná dostupnost do Prahy a široká občanská vybavenost v obci činí z této nabídky ideální volbu pro rodinné bydlení. Máme pro vás připravenou stavební dokumentaci k započatým rekonstrukcím a Stavební povolení. Neváhejte a přijďte se přesvědčit o potenciálu tohoto domu.

 
zobrazit více
 
 
 


Doplňující informace:

ID inzerátu ESO: 4344682
Inzerát vydán: 08.07.2025
Inzerát aktualizován: 10.07.2025
ID zakázky v RK: 900914144
Budova je z: Cihla
Stav: Ve výstavbě (nezkolaudováno)
Vlastnictví: Osobní
Umístění: Ve výstavbě (nezkolaudováno)
Poloha objektu: Samostatný
Užitná plocha: 68 m2
Plocha pozemku: 233 m2
Energetická náročnost budovy:
G - Mimořádně nehospodárná
 
 

 

Bleskový dotaz makléři

K prodeji, Rodinný dům, 68 m2, Nová Ves

Text dotazu *
Váš telefon *
Váš e-mail
Zobrazit kontaktní informace
Odeslat
 
 
 
 

Ve schránce je 0 inzerátů.

zobrazit celou schránku
 
 

Nalezli jsme dalších 9 nemovitostí v podobné ceně.

 
 
reklama