K prodeji, Rodinný dům, 67 m2, Mcely

 
 
nový
 
Lokalita:
Mcely
 
 
Cena:
2 990 000 Kč / za nemovitost
 
 
uvedená cena je: včetně provize Nabídněte prodejci Vaši cenu 
 
 

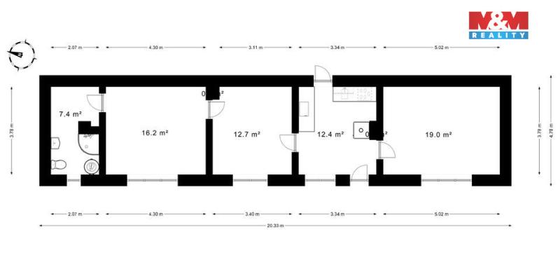
Nabízíme k prodeji samostatně stojící rodinný dům v klidné a malebné obci Mcely, ideální pro ty, kteří hledají soukromí, zeleň a únik z ruchu města. Dům je jednopodlažní, o dispozici 3+1 a užitné ploše 67 m², stojí na pozemku o celkové výměře 710 m². Nemovitost je smíšené konstrukce a nachází se v původním stavu před rekonstrukcí a nabízí tak skvělou příležitost upravit si bydlení přesně podle vlastních představ, ať už pro trvalé bydlení, nebo jako rekreační zázemí. Mcely je menší obec uprostřed přírody a je vyhledávanou rekreační oblastí, jelikož se nachází v zalesněném území s hojným výskytem hub, borůvek a dalších lesních plodů. Vede zde turistická stezka a oblíbené jsou i cyklistické výlety po okolí. Tato nemovitost osloví zejména klienty, kteří hledají klid, soukromí a možnost realizovat své vlastní představy o bydlení. Pro více informací nebo domluvení prohlídky nás neváhejte kontaktovat.

 
zobrazit více
 
 
 


Doplňující informace:

ID inzerátu ESO: 4390243
Inzerát vydán: 11.03.2026
Inzerát aktualizován: 12.03.2026
ID zakázky v RK: 900934251
Budova je z: Smíšená
Stav: Před rekonstrukcí
Vlastnictví: Osobní
Umístění: Před rekonstrukcí
Poloha objektu: Samostatný
Užitná plocha: 67 m2
Plocha pozemku: 710 m2
Parkování: Garáž
Energetická náročnost budovy:
G - Mimořádně nehospodárná
 
 

 

Bleskový dotaz makléři

K prodeji, Rodinný dům, 67 m2, Mcely

Text dotazu *
Váš telefon *
Váš e-mail
Zobrazit kontaktní informace
Odeslat
 
 
 
 

Ve schránce je 0 inzerátů.

zobrazit celou schránku
 
 

Nalezli jsme dalších 4 nemovitostí v podobné ceně.

 
 
reklama