K prodeji, Rodinný dům, 223 m2, Soběkury

 
 
 
Lokalita:
Soběkury
 
 
Cena:
4 499 000 Kč / za nemovitost
 
 
uvedená cena je: včetně provize Nabídněte prodejci Vaši cenu 
 
 

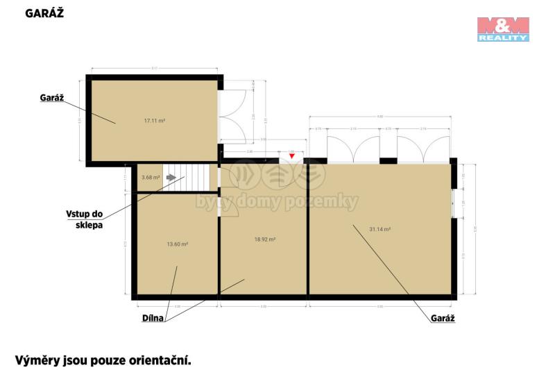
Nabízíme vám k prodeji prostorný, dvougenerační rodinný dům o užitné ploše 223 m², situovaný v malebné obci Soběkury. Nemovitost, s pozemkem o celkové výměře 1.155 m², je v původním stavu a disponuje 2 nadzemními podlažími nabízející flexibilní využití prostoru. Přízemí lze užívat jako bytovou jednotku o dispozici 3+1 s koupelnou, samostatným WC, technickou místností a spíží. První patro poskytuje dispoziční řešení 4+1 s balkónem, koupelnou, toaletou, šatnou a spíží. Součástí domu jsou také sklepní i půdní prostory. Topení je zajištěno plynovým kotlem, ohřev vody bojlerem. Nemovitost je napojena na veřejný vodovod, plynovod i kanalizaci. K domu náleží 2 garáže, prostorná dílna a skleník. Nespornou výhodou je také strategické umístění nemovitosti a okolní klidná lokalita. Obec Soběkury se nachází 10 km od města Přeštice, 15 km od Stodu. Plzeň je vzdálená 26 km, Klatovy 23 km. Pro více informací se na nás neváhejte obrátit! Vřele doporučujeme prohlídku nemovitosti!

 
zobrazit více
 
 
 


Doplňující informace:

ID inzerátu ESO: 4341856
Inzerát vydán: 24.06.2025
Inzerát aktualizován: 10.07.2025
ID zakázky v RK: 900911885
Budova je z: Cihla
Stav: Před rekonstrukcí
Vlastnictví: Osobní
Umístění: Před rekonstrukcí
Poloha objektu: Samostatný
Užitná plocha: 223 m2
Plocha pozemku: 1155 m2
Parkování: Garáž
Balkón: ANO
Energetická náročnost budovy:
E - Nehospodárná
 
 

 

Bleskový dotaz makléři

K prodeji, Rodinný dům, 223 m2, Soběkury

Text dotazu *
Váš telefon *
Váš e-mail
Zobrazit kontaktní informace
Odeslat
 
 
 
 

Ve schránce je 0 inzerátů.

zobrazit celou schránku
 
 

Nalezli jsme dalších 12 nemovitostí v podobné ceně.

 
 
reklama