K prodeji, Rodinný dům, 195 m2, Těně

 
 
 
Lokalita:
Těně
 
 
Cena:
8 690 000 Kč / za nemovitost
 
 
uvedená cena je: bez provize Nabídněte prodejci Vaši cenu 
 
 

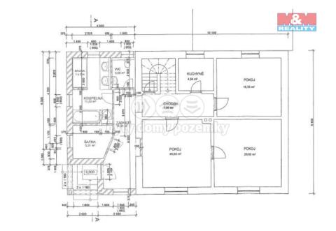
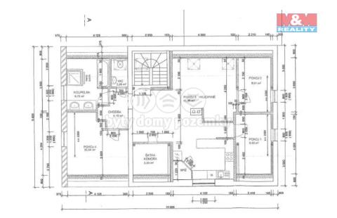
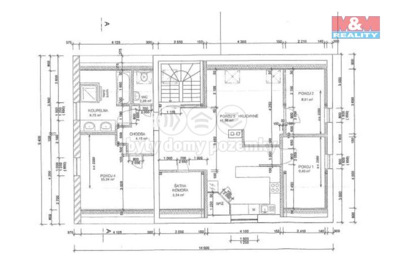
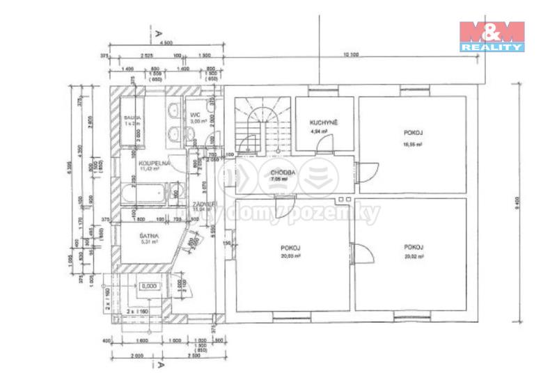
Nabízíme k prodeji prostorný a plně zrekonstruovaný rodinný dům v malebné a klidné obci Těně, okres Rokycany, na okraji Brdských lesů. Dům má dvě nadzemní podlaží, je podsklepený a nabízí celkovou užitnou plochu 195 m². Dispozice domu: v přízemí 3+1, v patře 4+kk – ideální i pro dvougenerační bydlení. Nemovitost prošla kompletní rekonstrukcí – nové rozvody elektřiny, vody i odpadů, zateplení, okna s trojskly, řízená rekuperace, příprava na solární panely, vytápění el. kotlem, kotlem na tuhá paliva i krbovými kamny s výměníkem. Každé patro má vlastní el. bojler, voda z obecního vodovodu i studny, odpad řešen ČOV. Pozemek má 1055 m², najdete zde garáž, pergolu, dílnu, sklep, skleník i dětský koutek. Výborná dopravní dostupnost: Praha 70 km, Plzeň 35 km, Rokycany 20 km, Strašice 5 km. Pro více informací kontaktujte makléře

 
zobrazit více
 
 
 


Doplňující informace:

ID inzerátu ESO: 4343101
Inzerát vydán: 01.07.2025
Inzerát aktualizován: 10.07.2025
ID zakázky v RK: 900913360
Budova je z: Smíšená
Stav: Velmi dobrý
Vlastnictví: Osobní
Umístění: Velmi dobrý
Poloha objektu: Řadový
Užitná plocha: 195 m2
Plocha pozemku: 1055 m2
Energetická náročnost budovy:
G - Mimořádně nehospodárná
 
 

 

Bleskový dotaz makléři

K prodeji, Rodinný dům, 195 m2, Těně

Text dotazu *
Váš telefon *
Váš e-mail
Zobrazit kontaktní informace
Odeslat
 
 
 
 

Ve schránce je 0 inzerátů.

zobrazit celou schránku
 
 

Nalezli jsme dalších 18 nemovitostí v podobné ceně.

 
 
reklama