K prodeji, Rodinný dům, 176 m2, Brno, Tuřanka

 
 
 
Lokalita:
Brno, Tuřanka
 
 
Cena:
18 500 000 Kč / za nemovitost
 
Informace o ceně u RK.
 
uvedená cena je: bez provize Nabídněte prodejci Vaši cenu 
 
 

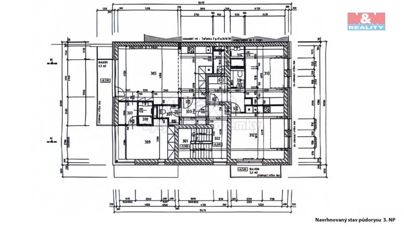
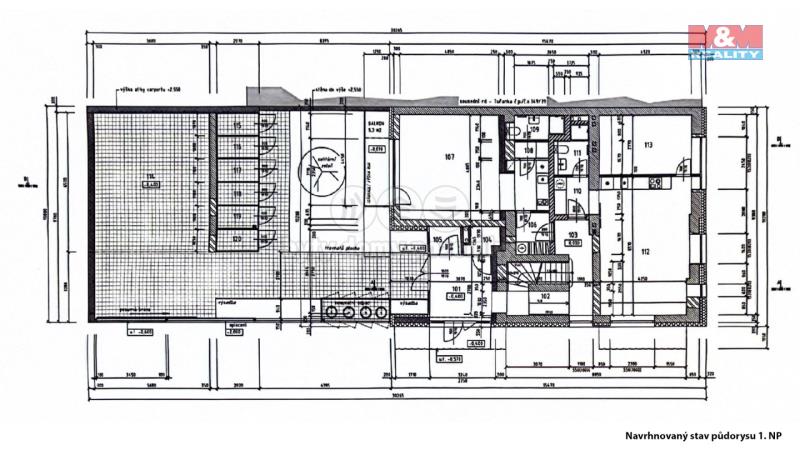
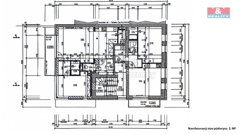
Nabízíme k prodeji investiční příležitost v podobě rohového rodinného domu v Brně-Slatině. Tato nemovitost se skládá ze 7 obytných místností rozložených na dvou nadzemních podlažích, půdy a jednoho podzemního podlaží. Celková momentální užitná plocha činí 176 m² a pozemek má rozlohu 355 m². Nemovitost je postavena z cihlové konstrukce a nachází se v rušné části obce s vynikající dopravní dostupností. Díky již vyřízenému územnímu rozhodnutí a podané žádosti o stavební povolení je dům ideální pro developery a investory hledající rychlý návrat investice. Projekt je plně připraven k zahájení stavebních prací, což minimalizuje časové ztráty a administrativní průtahy. K domu náleží dvě garáže a parkování je možné na příjezdové cestě k nim. K domu stávající majitel poskytne projekt na vybudování celkem 4-6 bytů a rozšíření stavby. Více informací v RK.

 
zobrazit více
 
 
 


Doplňující informace:

ID inzerátu ESO: 4356015
Inzerát vydán: 29.08.2025
Inzerát aktualizován: 30.08.2025
ID zakázky v RK: 900911073
Budova je z: Cihla
Stav: Před rekonstrukcí
Vlastnictví: Osobní
Umístění: Před rekonstrukcí
Poloha objektu: Rohový
Užitná plocha: 176 m2
Plocha pozemku: 355 m2
Parkování: Garáž
Balkón: ANO
Energetická náročnost budovy:
G - Mimořádně nehospodárná
 
 

 

Bleskový dotaz makléři

K prodeji, Rodinný dům, 176 m2, Brno, Tuřanka

Text dotazu *
Váš telefon *
Váš e-mail
Zobrazit kontaktní informace
Odeslat
 
 
 
 

Ve schránce je 0 inzerátů.

zobrazit celou schránku
 
 

Nalezli jsme dalších 16 nemovitostí v podobné ceně.

 
 
reklama