K prodeji, Rodinný dům, Velké Přílepy, Dvořákova

 
 
 
Lokalita:
Velké Přílepy, Dvořákova
 
 
Cena:
11 800 000 Kč / za nemovitost
 
 
uvedená cena je: včetně provize Nabídněte prodejci Vaši cenu 
 
 

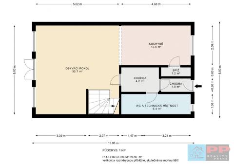
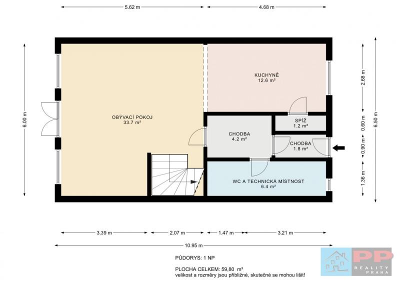
ID: P110701. Ve výhradním zastoupení nabízím k prodeji řadový rodinný dům o velikosti 4+kk (114m2 + půda 38m2) se zahradou, v obci Velké Přílepy, necelých 7 km od hranic Prahy. Dům je situován v klidné rezidenční čtvrti a postaven byl v roce 2007. V přízemí vás přivítá obývací pokoj propojený s kuchyní a jídelním koutem, kde si můžete užívat společné chvíle s rodinou. Dále se zde nachází praktická spíž, technická místnost a WC. V 1. patře naleznete tři samostatné ložnice a koupelnu s toaletou. Odtud se po schůdkách dostanete na prostornou půdu, která skýtá možnost pro další rozšíření obytného prostoru. Vytápění a ohřev teplé vody jsou řešeny pomocí plynového kotle. K domu náleží předzahrádka s parkovacím stáním, zatímco za domem vás čeká zahrada s vzrostlou zelení, která je místem klidu a pohody. Příjemné posezení u venkovního grilu nebo péče o rostliny či prostě relax, to vše si zde můžete dopřát. K dispozici je také zahradní domek se skleníkem. Strategická poloha umožňuje rychlý dojezd autem do Prahy-Suchdol za 10 minut nebo pohodlnou cestu hromadnou dopravou na metro Bořislavka za 20 minut. Okolí Velkých Přílep potěší milovníky přírody a aktivního odpočinku, je zde několik přírodních rezervací vhodných pro pěší túry či cyklovýlety. Nedaleký Únětický pivovar je oblíbeným cílem k rodinným výletům a ochutnávkám místního piva. Pro více informací a osobní prohlídku mě neváhejte kontaktovat. K dispozici je také 3D virtuální prohlídka domu a pozemku, kterou si můžete uskutečnit z pohodlí vašeho domova či kanceláře.

 
zobrazit více
 
 
 


Doplňující informace:

ID inzerátu ESO: 4351045
Inzerát vydán: 08.08.2025
Inzerát aktualizován: 17.10.2025
ID zakázky v RK: 0
Budova je z: Cihla
Stav: Velmi dobrý
Umístění: Velmi dobrý
Plocha pozemku: 245 m2
Užitná plocha: 152 m2
Podlahová plocha: 114 m2
Plocha zahrady: 123 m2
Zastavěná plocha: 122 m2
Energetická náročnost budovy:
C - Úsporná
 
 

 

Bleskový dotaz makléři

K prodeji, Rodinný dům, Velké Přílepy, Dvořákova

Text dotazu *
Váš telefon *
Váš e-mail
Zobrazit kontaktní informace
Odeslat
 
 
 
 

Ve schránce je 0 inzerátů.

zobrazit celou schránku
 
 

Nalezli jsme dalších 34 nemovitostí v podobné ceně.

 
 
reklama