K prodeji, Rodinný dům, Rokytnice nad Jizerou

 
 
 
Lokalita:
Rokytnice nad Jizerou
 
 
Cena:
8 490 000 Kč / za nemovitost
 
včetně provize
 
uvedená cena je: včetně provize Nabídněte prodejci Vaši cenu 
 
 

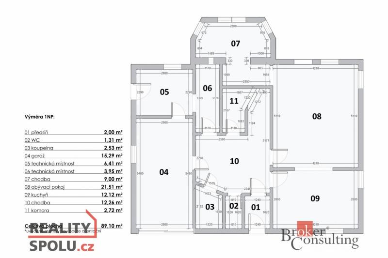
Jsou domy, které mají dobré základy a čekají jen na novou energii, aby se z nich stal skutečný domov. Tento dvoupodlažní rodinný dům z roku 2001 stojí na výjimečném místě – v Dolní Rokytnici, s otevřeným výhledem do krajiny, který vám vezme dech. Dům je určený k celkové modernizaci interiéru, ale právě to je jeho silou – můžete si ho přetvořit přesně podle vlastních představ. Hlavní přednosti: Dvoupatrový rodinný dům s užitnou plochou 171 m² Aktuálně řešený jako 5+1, ale dispozici lze při rekonstrukci měnit a přizpůsobit. 1NP: - Dispozice 1+1 - garáž, technická místnost, 1x koupelna, toaleta 2NP: - 4 pokoje, 2x koupelna Kompletní výměra pozemku 966 m² Velký prostor pro zahradu, odpočinek, dětské hry, případně i další využití. Solidní stavba z roku 2001 Kvalitní konstrukce, připravená na modernizaci interiéru. Výjimečná poloha v Dolní Rokytnici Dolní Rokytnice je část města Rokytnice nad Jizerou v malebných Krkonoších, známá svými sportovními možnostmi a krásnou přírodou. Místní infrastruktura myslí na sportovce, rodiny i mladé páry – ať už jste milovníci adrenalinu, relaxace v sauně, procházek horskou přírodou nebo hledáte místo s občanskou vybaveností, bary, restauracemi i příležitostí pro sportovní vyžití po celý rok. Dům, který čeká na nové majitele s vizí. Může se stát pohodlným rodinným zázemím, rekreačním sídlem i místem, kde každý den začíná pohledem do volné krajiny. Těším se na Vás na prohlídce!

 
zobrazit více
 
 
 


Doplňující informace:

ID inzerátu ESO: 4361567
Inzerát vydán: 25.09.2025
Inzerát aktualizován: 07.11.2025
Budova je z: Cihla
Stav: Dobrý
Umístění: Dobrý
Plocha pozemku: 966 m2
Balkón: ANO
Užitná plocha: 171 m2
Plocha zahrady: 855 m2
Zastavěná plocha: 111 m2
Energetická náročnost budovy:
G - Mimořádně nehospodárná
 
 

 

Bleskový dotaz makléři

K prodeji, Rodinný dům, Rokytnice nad Jizerou

Text dotazu *
Váš telefon *
Váš e-mail
Zobrazit kontaktní informace
Odeslat
 
 
 
 

Ve schránce je 0 inzerátů.

zobrazit celou schránku
 
 

Nalezli jsme dalších 16 nemovitostí v podobné ceně.

 
 
reklama