K prodeji, Rodinný dům, Pečky, Dobřichovská

 
 
 
exkluzivně
 
Lokalita:
Pečky, Dobřichovská
 
 
Cena:
4 126 580 Kč / za nemovitost
 
Konečná cena včetně Kupní smlouvy, advokátní úschovy a výhodného úvěru.
 
Nabídněte prodejci Vaši cenu 
 
 

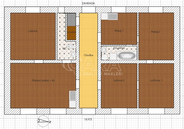
Nabízím k prodeji rodinný dům v obci Pečky, necelých pět minut pěšky od vlakového a autobusového nádraží. Velmi dobré spojení do Prahy. Autem na Černý Most za půl hodiny a vlakem do centra Prahy za 1 hodinu. Za 20 minut už jste na nádraží v Kolíně. Tento dům smíšené konstrukce je v řadové zástavbě a nabízí dostatek místností pro velkou rodinu. Celková zastavěná plocha domu činí 154 m², zatímco užitná plocha je 99 m². Součástí parcely je také zahrada za domem o celkové výměře 261 m². Na zahradě je meruňka a ořech. Na hranici pozemku je studna s užitkovou vodou a je používaná napůl se sousedy. Další prostory najdete na půdě, která má v ploše přes 100 m² a její prostor tak můžete využít pro další zvětšení domu, například sklad či jiné prostory. Dům je před rekonstrukcí, což poskytuje nové možnosti pro úpravy dle individuálních představ budoucího majitele. U domu se nachází sklep s plochou 7 m². Dům je připojen na obecní vodovod a na kanalizaci. Také na plynovod a elektřinu s napětím 230 V. Internetové přípojka na VDSL, což zajišťuje rychlé a spolehlivé připojení. Vytápění je řešeno prostřednictvím WAW topných těles, zatímco teplá voda v koupelně se ohřívá po staru v kotli na tuhá paliva. V koupelně je k dispozici vana. Nemovitost se nachází v příjemném prostředí a při rekonstrukci má potenciál stát se útulným domovem podle individuálních představ. Pro tento dům najdete další informace na internetové stránce https://jiri.kuna.cz/dum-v-peckach V případě zájmu o prohlídku mě neváhejte kontaktovat. Energetický štítek v kategorii G. DOTACE: Pro tento dům máme spočítané dotace z programu NZÚ (Nová zelená úsporám - Oprav dům po babičce) na nová okna, zateplení fasády, zateplení střechy a zateplení podlah a to v předpokládané výši 740.000,- Kč a k tomu podle počtu dětí máte další příspěvky. Na rekonstrukci z dotací máme připravený i zvýhodněný úvěr se sazbou 2-3%. Můžete využít i další dotace na fotovoltaiku, tepelné čerpadlo, dešťovku, kotel na biomasu, rekuperaci, zelenou střechu. Velkou výhodou je, že pro realizaci všech prací je připravena stavební firma. Ta má bohaté zkušenosti s realizací těchto úprav a vše udělá tak, aby byly splněny podmínky dotaci a zároveň všechny dotace vyřídí. Pro Vás je to velká úspora starostí a času.

 
zobrazit více
 
 
 


Doplňující informace:

ID inzerátu ESO: 4344172
Inzerát vydán: 06.07.2025
Inzerát aktualizován: 04.12.2025
ID zakázky v RK: 16493
Budova je z: Smíšená
Stav: Před rekonstrukcí
Umístění: Před rekonstrukcí
Plocha pozemku: 261 m2
Užitná plocha: 99 m2
Podlahová plocha: 220 m2
Plocha sklepa: 7 m2
Plocha zahrady: 168 m2
Zastavěná plocha: 154 m2
Energetická náročnost budovy:
G - Mimořádně nehospodárná
 
 

 

Bleskový dotaz makléři

K prodeji, Rodinný dům, Pečky, Dobřichovská

Text dotazu *
Váš telefon *
Váš e-mail
Zobrazit kontaktní informace
Odeslat
 
 
 
 

Ve schránce je 0 inzerátů.

zobrazit celou schránku
 
 

Nalezli jsme dalších 21 nemovitostí v podobné ceně.

 
 
reklama