K prodeji, Rodinný dům, Netřebice

 
 
nový
 
Lokalita:
Netřebice
 
 
Cena:
3 490 000 Kč / za nemovitost
 
 
Nabídněte prodejci Vaši cenu 
 
 

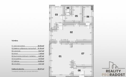
Hledáte rodinný dům, kam se můžete ihned nastěhovat? Pak doražte do Netřebic - menší vesničky vzdálené 20 minut autem od krajského města. Na pozemku o celkové ploše 173 m2 se nachází dům s obytným přízemím a prostornou prázdnou půdou vhodnou k vestavbě dalších dvou pokojů a druhé koupelny. Ateliérové uspořádání přízemí Vás na první pohled zaujme a velký prostor v zadní části to jen podtrhne. Hned za ní je prostorná koupelna s vanou a WC a úplně vzadu pak najdete kotelnu s el. kotlem a bojlerem, velkou verandu vhodnou např. jako zimní zahradu a vstup na zmiňovanou půdu. Obývací pokoj je propojen s ložnicí a vytváří tak jeden velký otevřený prostor. Dům prošel rozsáhlou rekonstrukcí - plastová okna, ústřední topení, omítky, podlahy, rozvody, fasáda, střecha. Je napojen na obecní vodovod i kanalizaci a samozřejmě elektřinu. Plyn v obci je. Auta můžete pohodlně parkovat na svém pozemku přímo před domem. Veškerou občanskou vybavenost najdete v nedaleké Kaplici a na Lipno to budete mít skoro stejně daleko jako do Budějovic. Strategická poloha k dálnici D3 a do Rakouska. Tak se přijeďte přesvědčit na vlastní oči.

 
zobrazit více
 
 
 


Doplňující informace:

ID inzerátu ESO: 4385714
Inzerát vydán: 20.02.2026
ID zakázky v RK: 29079
Budova je z: Smíšená
Stav: Velmi dobrý
Umístění: Velmi dobrý
Plocha pozemku: 130 m2
Užitná plocha: 85 m2
Podlahová plocha: 85 m2
Plocha zahrady: 43 m2
Zastavěná plocha: 130 m2
Energetická náročnost budovy:
D - Méně úsporná
 
 

 

Bleskový dotaz makléři

K prodeji, Rodinný dům, Netřebice

Text dotazu *
Váš telefon *
Váš e-mail
Zobrazit kontaktní informace
Odeslat
 
 
 
 

Ve schránce je 0 inzerátů.

zobrazit celou schránku
 
 

Nalezli jsme dalších 6 nemovitostí v podobné ceně.

 
 
reklama