K prodeji, Rodinný dům, Mukařov, Zvonečková

 
 
 
exkluzivně
 
Lokalita:
Mukařov, Zvonečková
 
 
Cena:
15 498 000 Kč / za nemovitost
 
Cena k jednání.
 
Nabídněte prodejci Vaši cenu 
 
 

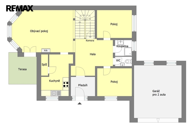
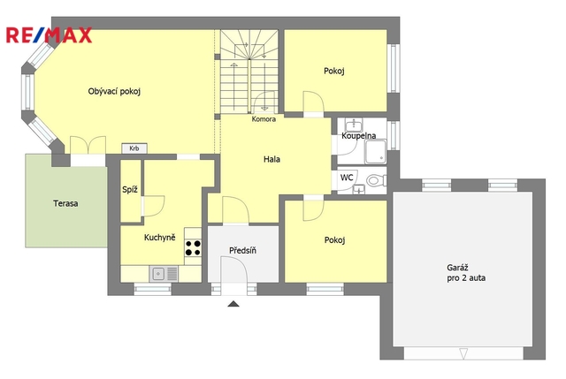
Nabízíme k prodeji prostorný rodinný dům v hezké obci Mukařov Srbín – v blízkosti přírody - lesů Voděradských bučin. Dům z roku 2007 je rodinným domem s potenciálem pro velkou rodinu. Přízemí domu je jako stvořené pro setkávání – opravdu prostorný obývací pokoj s krbem a přímým vstupem na terasu i do kuchyně poskytne dostatek prostoru pro rodinu i návštěvy; Dále se zde nacházejí dvě samostatné ložnice, koupelna a toaleta. Kuchyně je prostorná a plně vybavená všemi spotřebiči, navíc je zde velmi praktická spíž pro uložení všech potřebných věcí. Dalším úložným prostorem je komora pod schody do patra. V prvním patře nalezneme tři velké místnosti, které lze variabilně využít. V jedné z místností je dnes ložnice, další dvě místnosti dnes slouží jako pracovny. V jedné z nich je kompletní příprava na kuchyňskou linku, jsou sem přitaženy všechny potřebné rozvody, proto lze jednoduchým způsobem v patře zřídit samostatný byt např. pro další generaci. Z chodby se vchází do prostorné koupelny s vanou i sprchovým koutem, nalezneme zde i pračku a sušičku. V domě je garáž pro pohodlné zaparkování dvou aut, garáž s elektrickým pohonem vrat je vytápěná, s oknem. Příjezdová cesta do garáže je vydlážděná, lze zde zaparkovat až 4 další auta. U domu je hezká udržovaná zahrada s automatickou závlahou. Vytápění plynovým kotlem, dům má energetickou třídu C – úsporná. Voda je odebírána z vlastní studny, k domu je přivedena voda z místního řadu. Mukařov Srbín je klidná obec s dobrou občanskou vybaveností. Další informace vám rádi poskytneme. Prosím, kontaktujte makléře nabídky. Prodávající si vyhrazuje právo vybrat kupujícího na základě jím zvolených kritérií.

 
zobrazit více
 
 
 


Doplňující informace:

ID inzerátu ESO: 4357007
Inzerát vydán: 03.09.2025
Inzerát aktualizován: 22.04.2026
ID zakázky v RK: 422230
Budova je z: Cihla
Stav: Velmi dobrý
Umístění: Velmi dobrý
Plocha pozemku: 662 m2
Užitná plocha: 230 m2
Zastavěná plocha: 186 m2
Energetická náročnost budovy:
C - Úsporná
 
 

 

Bleskový dotaz makléři

K prodeji, Rodinný dům, Mukařov, Zvonečková

Text dotazu *
Váš telefon *
Váš e-mail
Zobrazit kontaktní informace
Odeslat
 
 
 
 

Ve schránce je 0 inzerátů.

zobrazit celou schránku
 
 

Nalezli jsme dalších 83 nemovitostí v podobné ceně.

 
 
reklama