K prodeji, Rodinný dům, Klínec

 
 
 
exkluzivně
 
Lokalita:
Klínec
 
 
Cena:
22 900 000 Kč / za nemovitost
 
Sleva při rychlém jednání. Cena včetně provize RK, právního servisu a advokátní úschovy.
 
Nabídněte prodejci Vaši cenu 
 
 

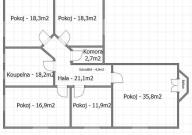
Samostatně stojící dům se vzrostlou zahradou, krytým bazénem s protiproudem a saunou v obci Klínec u Prahy. Dispozice 6+1, užitná plocha: 296 m², terasa, samostatná dvojgaráž 49 m², celková plocha pozemku 958 m². Výborná dostupnost na Prahu (Smíchov cca 15 min, centrum ~25 min), klid u Brd a maximální soukromí. Hlavní přednosti • reprezentativní obývací pokoj ~50 m² s krbem a francouzskými okny na terasu a zahradu • krytý vyhřívaný bazén s protiproudem, luxusní sauna pro 3 osoby • masivní kuchyň Sýkora se spotřebiči AEG • truhlářské prvky na míru: ohýbané točité schodiště, masivní dveře; celoplošné parkety z exotických dřev • dvě jižně orientované ložnice s klimatizací (i přitápění) • samostatně stojící dvojgaráž 49 m² (sekční vrata Hörmann) + masivní samonosná vjezdová brána • bezpečnostní systém napojený na PCO (alarm) • klidná ulice, vzrostlá zeleň a absolutní soukromí Dispozice a vybavení • Přízemí: vstupní chodba se šatnou, předsíň s komorou, ložnice pro hosty, pracovna, velkorysý obývací pokoj s krbem, jídelna s plně vybavenou kuchyní Sýkora (AEG), francouzská okna na terasu a zahradu, koupelna s rohovou vanou a WC. • 1. patro: 4 ložnice (část s balkonem), prostorná koupelna: masážní vana, sprchový kout HÜPPE, sauna, WC a bidet; fitness/úložná zóna. Dvě jiho-orientované ložnice mají klimatizaci s možností přitápění. Pozemek a zázemí • celková výměra pozemku 958 m², okrasná zahrada cca 725 m² • zastřešená pergola se zahradním krbem, krytý bazén (vyhřívání + protiproud) • samostatná dvojgaráž pro 2 větší vozy + moto (49 m²) Technické informace • rok výstavby: 2002 • vytápění: plynový kotel napojený na vlastní LPG zásobník 2 400 l (propan-butan) • inženýrské sítě: obecní voda, elektřina, kanalizace • zabezpečení: alarm s napojením na PCO • vybavení: dům je částečně zařízený Lokalita a dostupnost Klínec leží v nádherné krajině Brdské vrchoviny. V okolí jsou terény pro kolo, běžky i jízdu na koni. Obec nabízí základní občanskou vybavenost (obchod s potravinami, MŠ, zdravotní středisko, restaurace, fotbalový klub, zastávka MHD). Pás lesa odděluje obec od D4 (dříve R4) – Smíchov cca 15 min, centrum Prahy ~25 min, MHD na Smíchov kolem 24 min.

 
zobrazit více
 
 
 


Doplňující informace:

ID inzerátu ESO: 4352134
Inzerát vydán: 15.08.2025
Inzerát aktualizován: 10.03.2026
ID zakázky v RK: 27382
Budova je z: Cihla
Stav: Velmi dobrý
Umístění: Velmi dobrý
Plocha pozemku: 958 m2
Užitná plocha: 345 m2
Plocha zahrady: 725 m2
Zastavěná plocha: 233 m2
Energetická náročnost budovy:
C - Úsporná
 
 

 

Bleskový dotaz makléři

K prodeji, Rodinný dům, Klínec

Text dotazu *
Váš telefon *
Váš e-mail
Zobrazit kontaktní informace
Odeslat
 
 
 
 

Ve schránce je 0 inzerátů.

zobrazit celou schránku
 
 

Nalezli jsme dalších 38 nemovitostí v podobné ceně.

 
 
reklama