K prodeji, Rodinný dům, Dobřany, Chotěšovská

 
 
 
exkluzivně
 
Lokalita:
Dobřany, Chotěšovská
 
 
Cena:
11 800 000 Kč / za nemovitost
 
vč.kompletního právního servisu a provize RK
 
Nabídněte prodejci Vaši cenu 
 
 

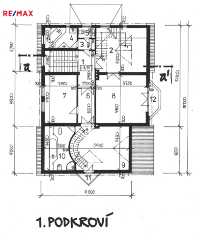
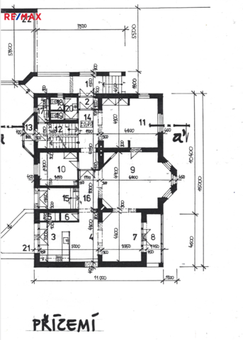
Luxusní vila se zahradou, garáží pro dva vozy a dokonalým soukromím – Dobřany, 8 minut od Plzně Nabízíme k prodeji výjimečnou rodinnou vilu nacházející se v klidné a vyhledávané části města Dobřany, pouhých 8 minut jízdy od Plzně. Tato elegantní rezidence z roku 1932 prošla v roce 2005 kompletní a velmi citlivou rekonstrukcí pod vedením architekta, který dokázal propojit prvorepublikový půvab s moderním komfortem. Dispozice a uspořádání Vila je částečně podsklepená, sklepní prostory slouží jako technické zázemí domu. V přízemí se nachází: • reprezentativní vstupní hala, • prostorný otevřený obytný prostor s kuchyní, jídelnou, zimní zahradou a obývací částí s hudebním koutem, • pokoj pro hosty, • koupelna se sprchovým koutem a toaletou. V prvním patře najdete: • hlavní ložnici s vlastní prostornou koupelnou, • dva dětské pokoje, • velkorysý mezonetový pokoj, • další koupelnu, • dvě samostatné šatny. Zázemí a technické vybavení Na dům navazuje garáž pro dva vozy, dále dílna a skladovací prostory. Ovládání garážových vrat je řešeno moderně pomocí GSM modulu. Dům je zateplený. Vytápění zajišťují dvoje krbová kamna nebo elektrokotel, ohřev teplé vody obstarává elektrický boiler. Nemovitost je napojena na obecní vodovod i kanalizaci; v chodníku je k dispozici plynová přípojka. Zahrada a exteriér Za domem se rozprostírá udržovaná okrasná zahrada o celkové ploše 1 015 m², které dominuje vzrostlý ořech. Součástí zahrady je dřevěný domek na uskladnění dřeva a venkovní terasa přístupná přímo z obývacího pokoje – ideální místo pro relaxaci a posezení s přáteli. Díky promyšlenému osazení a umístění pozemku nabízí zahrada naprosté soukromí a klid. Lokalita Dobřany jsou malebné město s kompletní občanskou vybaveností – školy, školka, obchody, restaurace, zdravotní středisko i sportoviště. Autobusová zastávka je vzdálena přibližně 100 metrů od domu a vlakové spojení do Plzně je rychlé a pravidelné. Rádi Vám bezplatně zajistíme nejvýhodnější financování hypotéčním úvěrem. Prodávající si vyhrazuje právo vybrat kupujícího na základě jím zvolených kritérií.

 
zobrazit více
 
 
 


Doplňující informace:

ID inzerátu ESO: 4365196
Inzerát vydán: 20.10.2025
Inzerát aktualizován: 27.04.2026
ID zakázky v RK: 424841
Budova je z: Cihla
Stav: Velmi dobrý
Umístění: Velmi dobrý
Plocha pozemku: 1015 m2
Užitná plocha: 395 m2
Plocha zahrady: 422 m2
Zastavěná plocha: 223 m2
Energetická náročnost budovy:
F - Velmi Nehospodárná
 
 

 

Bleskový dotaz makléři

K prodeji, Rodinný dům, Dobřany, Chotěšovská

Text dotazu *
Váš telefon *
Váš e-mail
Zobrazit kontaktní informace
Odeslat
 
 
 
 

Ve schránce je 0 inzerátů.

zobrazit celou schránku
 
 

Nalezli jsme dalších 14 nemovitostí v podobné ceně.

 
 
reklama