K prodeji, Rodinný dům, Chrudim, Malecká

 
 
 
Lokalita:
Chrudim, Malecká
 
 
Cena:
6 699 000 Kč / za nemovitost
 
včetně provize, včetně právního servisu
 
uvedená cena je: včetně provize, včetně právního servisu Nabídněte prodejci Vaši cenu 
 
 

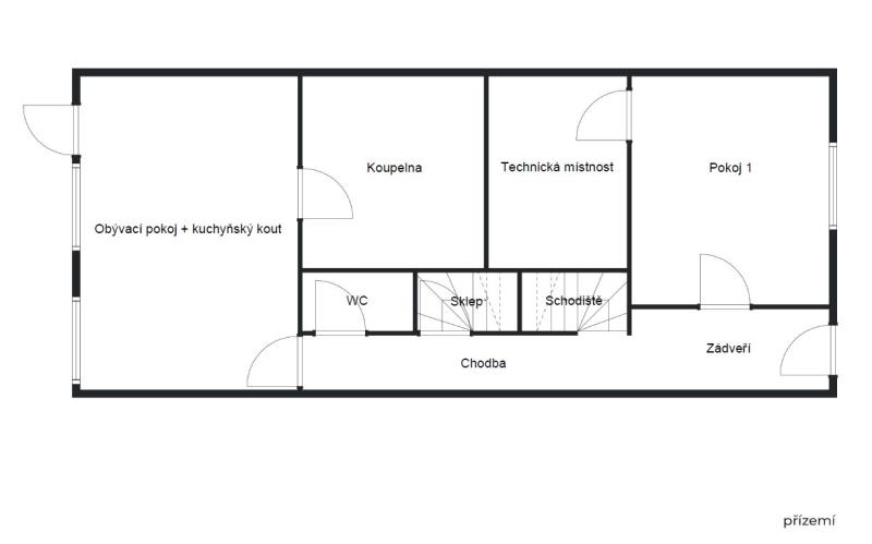
Nabízíme k prodeji prostorný a světlý rodinný dům o dispozici 6+kk, který se nachází v klidné části města Chrudim. RD je situován na východní hranici pozemku o celkové velikosti 528 m². Jedná se o částečně podsklepený, řadový dům s jedním nadzemním podlažím a obytným podkrovím. Objekt je připojen na veřejné rozvody – vodovod, kanalizace, plyn. Současně disponuje i studnou. Dům je vytápěn plynovým kotlem, který se nachází v technické místnosti (viz plánek přízemí - fotografie). Dominantní místností domu je obývací pokoj s kuchyňským koutem, z kterého vedou dveře přímo na slunnou terasu, která nabízí ideální zázemí pro grilování či posezení s přáteli. Dům je ideální volbou pro ty, kteří hledají prostor pro realizaci domova dle vlastních představ. Inzerát obsahuje i několik vizualizací, které slouží jako inspirace pro možnou proměnu prostorů. V okolí naleznete veškerou občanskou vybavenost, výborná dostupnost do centra města i nedalekých Pardubic. (20 minut jízdy autem) Nemovitost lze financovat hypotečním úvěrem, s kterým Vám rádi pomůžeme. Více informací u makléře. Budeme se těšit na osobní setkání.

 
zobrazit více
 
 
 


Doplňující informace:

ID inzerátu ESO: 4346329
Inzerát vydán: 14.07.2025
Inzerát aktualizován: 29.11.2025
Budova je z: Cihla
Stav: Dobrý
Umístění: Dobrý
Plocha pozemku: 528 m2
Terasa: ANO
Užitná plocha: 162 m2
Plocha sklepa: 11 m2
Energetická náročnost budovy:
D - Méně úsporná
 
 

 

Bleskový dotaz makléři

K prodeji, Rodinný dům, Chrudim, Malecká

Text dotazu *
Váš telefon *
Váš e-mail
Zobrazit kontaktní informace
Odeslat
 
 
 
 

Ve schránce je 0 inzerátů.

zobrazit celou schránku
 
 

Nalezli jsme dalších 19 nemovitostí v podobné ceně.

 
 
reklama