K prodeji, Rodinný dům, Kojice

 
 
 
exkluzivně
 
Lokalita:
Kojice
 
 
Cena:
4 499 031 Kč / za nemovitost
 
Cena zahrnuje veškerý právní servis
 
Nabídněte prodejci Vaši cenu 
 
 

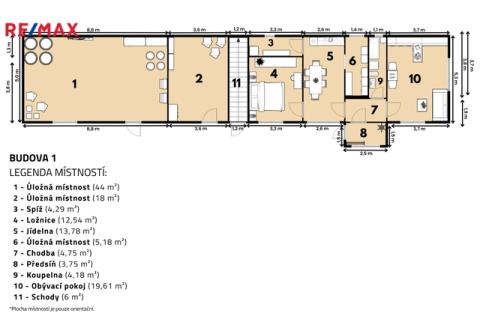
Toto je to ideální místo, kde se snoubí klid, čisté ovzduší a potenciál pro bydlení, rekreaci i hospodaření! Za ještě lepší cenu můžete mít pestrý soubor budov s užitnou plochou 218m2 a hlavně velkým potenciálem úprav plus rozšíření v malebné obci Kojice, nedaleko řeky Labe a místních rybníků. Na rozlehlém slunném pozemku o celkové výměře 2 446 m² najdete dvě obytné budovy, prostornou stodolu a samostatný sklípek. Usedlost je obklopena úrodnou půdou a ovocným sadem, který poskytuje nejen krásné prostředí, ale i možnost vlastní úrody. Hlavní přednosti: Dvě obytné budovy, první ihned obyvatelná s nově udělanou elektřinou a plynovým topením, vše s možností dalších úprav a rozšíření dle vlastních představ Ideální prostředí a dostatek místa i pro chovná a domácí zvířata Velké půdní prostory (165m2+32m2) vhodné k vestavbě či rozšíření obytné plochy Stodola – ideální pro hospodářské využití, skladování nebo přestavbu na ateliér či dílnu Vinný sklípek – autentický prvek s atmosférou, vhodný pro uchování vína či potravin a posezení s výhledem Ovocný sad, zahrada a úrodná půda – možnost pěstování, zahradničení nebo drobného hospodaření Vlastní studna – nezávislý zdroj vody, obecní přípojka vody u domu Plyn a elektřina – kompletní inženýrské sítě zavedeny Klidná lokalita s čistým ovzduším, ideální pro rodinný život i odpočinek Obec Kojice leží v malebném prostředí Polabí, s výbornou dostupností autem (obchvat) i vlakem do Pardubic, Kolína i Prahy. Díky okolní přírodě, rybníkům a blízkosti Labe je to skvělé místo pro milovníky klidu, rybaření, myslivosti, cykloturistiky i procházky v přírodě. Potraviny, hřiště s hospodou, MŠ na místě, vše ostatní v blízkém okolí, viz web obce. Možnosti využití: Rodinné bydlení s velkou zahradou a hospodářským zázemím pro zvířata - bio farma Rekreační usedlost pro klidné víkendové pobyty a odpočinek i pro větší počet lidí Investiční příležitost – přestavba na ubytovnu, agroturistiku, vícegenerační bydlení nebo jiný druh podnikání v souladu s územním plánem Tato usedlost v Kojicích nabízí jedinečnou kombinaci tradiční atmosféry, velkého pozemku a širokých možností využití. Je ideální pro ty, kteří hledají klidné místo k životu, chtějí hospodařit, nebo naopak hledají zajímavou investici s velkým potenciálem zhodnocení... Nenechte si uniknout tuto unikátní příležitost! S případnou hypotékou vám rádi pomůžeme Pište či volejte pro více informací a termín prohlídky. Díky a budu se těšit

 
zobrazit více
 
 
 


Doplňující informace:

ID inzerátu ESO: 4364549
Inzerát vydán: 15.10.2025
Inzerát aktualizován: 10.12.2025
ID zakázky v RK: 425270
Budova je z: Smíšená
Stav: Před rekonstrukcí
Umístění: Před rekonstrukcí
Plocha pozemku: 2446 m2
Užitná plocha: 218 m2
Zastavěná plocha: 218 m2
Energetická náročnost budovy:
G - Mimořádně nehospodárná
 
 

 

Bleskový dotaz makléři

K prodeji, Rodinný dům, Kojice

Text dotazu *
Váš telefon *
Váš e-mail
Zobrazit kontaktní informace
Odeslat
 
 
 
 

Ve schránce je 0 inzerátů.

zobrazit celou schránku
 
 

Nalezli jsme dalších 13 nemovitostí v podobné ceně.

 
 
reklama