K prodeji, dům, Zhoř

 
 
 
Lokalita:
Zhoř
 
 
Cena:
5 990 000 Kč / za nemovitost
 
 
uvedená cena je: včetně provize, včetně právního servisu Nabídněte prodejci Vaši cenu 
 
 

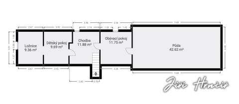
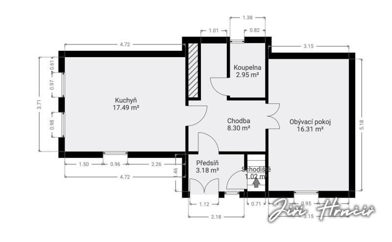
Prodej chalupy se zahradou Na prodej je dům s jedinečnou atmosférou v obci Březí, ležící v klidné a malebné části jižních Čech. Místo, které nabízí soukromí, zeleň a pohodové bydlení na dosah přírody. Dům prošel důležitými úpravami - před 12 lety byla provedena nová střecha, elektřina je v mědi, vytápění zajišťují krbová kamna s vložkou a ohřev vody bojlerem. Objekt je napojen na obecní vodovod a k dispozici je také vlastní studna. Zahrada je prostorná a udržovaná, s množstvím vzrostlých stromů, klidnými zákoutími a stodolou. Nabízí dostatek prostoru pro odpočinek, pěstování i volnočasové aktivity. V obci se nachází autobusová zastávka s přímým spojením na Prahu, což zajišťuje velmi dobrou dostupnost. Nemovitost je vhodná jak pro trvalé bydlení, tak jako rekreační chalupa. Kdo hledá klid, prostor a dům s příjemnou atmosférou, tady ho najde.

 
zobrazit více
 
 
 


Doplňující informace:

ID inzerátu ESO: 4364971
Inzerát vydán: 18.10.2025
Inzerát aktualizován: 14.02.2026
ID zakázky v RK: 0
Budova je z: Smíšená
Stav: Dobrý
Umístění: Dobrý
Plocha pozemku: 2088 m2
Užitná plocha: 99 m2
Podlahová plocha: 99 m2
Plocha zahrady: 1837 m2
Zastavěná plocha: 251 m2
Energetická náročnost budovy:
G - Mimořádně nehospodárná
 
 

 

Bleskový dotaz makléři

K prodeji, dům, Zhoř

Text dotazu *
Váš telefon *
Váš e-mail
Zobrazit kontaktní informace
Odeslat
 
 
 
 

Ve schránce je 0 inzerátů.

zobrazit celou schránku
 
 

Nalezli jsme dalších 16 nemovitostí v podobné ceně.

 
 
reklama