K prodeji, dům, Roudnice nad Labem, Špindlerova třída

 
 
 
Lokalita:
Roudnice nad Labem, Špindlerova třída
 
 
Cena:
6 500 000 Kč / za nemovitost
 
včetně provize a daní
 
uvedená cena je: včetně provize Nabídněte prodejci Vaši cenu 
 
 

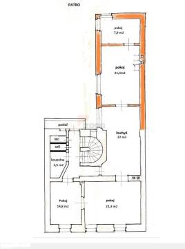
Exkluzivně nabízíme prodej vícegeneračního rodinného domu v Roudnici nad Labem, Špindlerova třída. Je ideální pro rodinné či vícegenerační bydlení nebo bydlení spojené s podnikáním. Dům je před kompletní rekonstrukcí, můžete si ho tedy upravit přesně dle Vašich představ! Dispozice: - 2 samostatné oddělené bytové jednotky 4+kk (přízemí 74,5 m, patro 109 m) - Dvůr 67 m, zahrada 342 m - Velký půdní prostor vhodný k vestavbě - Malý sklep pod schody - Chodba/vjezd 26 m vhodný pro parkování 1 vozidla Vybavení: - Plynové nebo elektrické vytápění - Městská voda a kanalizace - Samostatné měření plynu a elektřiny pro každou jednotku Zahrada - ve vnitrobloku - prostorná, tichá a slunná - s ovocnými a okrasnými stromy Lokalita: - Klidná lokalita poblíž centra, naproti VOŠ a SOŠ - 3x základní škola v dochozí vzdálenosti - Výborná občanská vybavenost - Rychlé spojení do Prahy: cca 35 min. po D8, 50 min vlakem - v roce 2031v plánu terminál vysokorychlostní železnice VTR- jízdní doma mezi Roudnicí a Prahou se zkrátí na 19 minut Průkaz energetické náročnosti se právě zpracovává, uvádíme třídu G. Dům je ihned volný, prohlídky jsou možné po telefonické dohodě. Uvedená cena je včetně provize, daní a právních služeb. Nemovitost lze financovat hypotékou, s vyřízením Vám rádi pomůžeme.

 
zobrazit více
 
 
 


Doplňující informace:

ID inzerátu ESO: 4359996
Inzerát vydán: 18.09.2025
Inzerát aktualizován: 09.10.2025
ID zakázky v RK: 0
Budova je z: Smíšená
Stav: Před rekonstrukcí
Umístění: Před rekonstrukcí
Plocha pozemku: 543 m2
Balkón: ANO
Užitná plocha: 210 m2
Podlahová plocha: 250 m2
Plocha zahrady: 342 m2
Zastavěná plocha: 201 m2
Energetická náročnost budovy:
G - Mimořádně nehospodárná
 
 

 

Bleskový dotaz makléři

K prodeji, dům, Roudnice nad Labem, Špindlerova třída

Text dotazu *
Váš telefon *
Váš e-mail
Zobrazit kontaktní informace
Odeslat
 
 
 
 

Ve schránce je 0 inzerátů.

zobrazit celou schránku
 
 

Nalezli jsme dalších 27 nemovitostí v podobné ceně.

 
 
reklama