K prodeji, Byt 5+1, Praha 5, Na Farkáně III

 
 
 
Lokalita:
Praha 5, Na Farkáně III
 
 
Cena:
18 990 000 Kč / za nemovitost
 
 
uvedená cena je: včetně provize Nabídněte prodejci Vaši cenu 
 
 

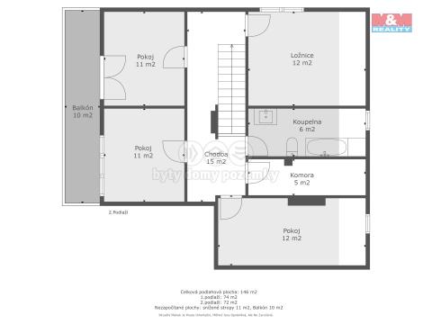
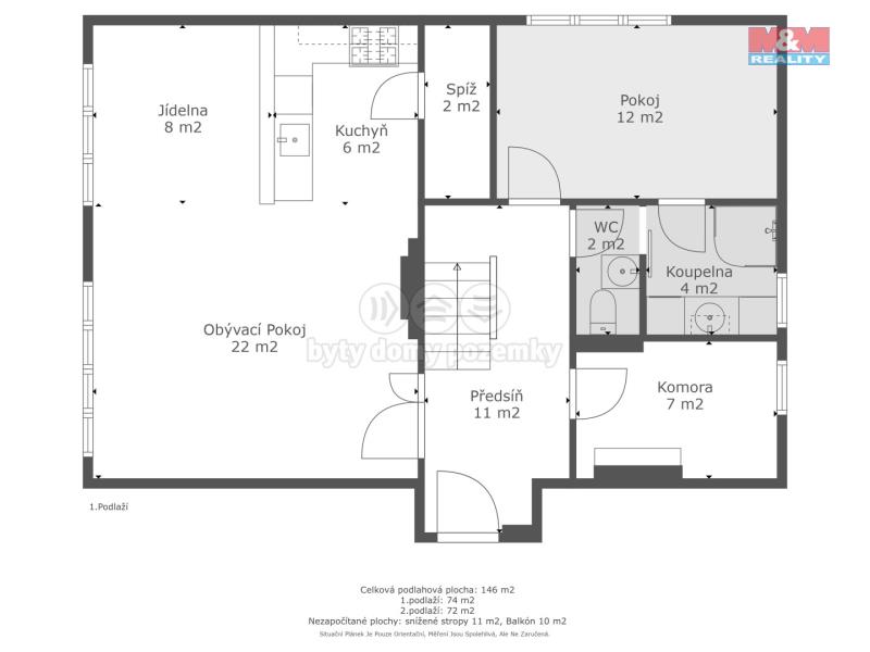
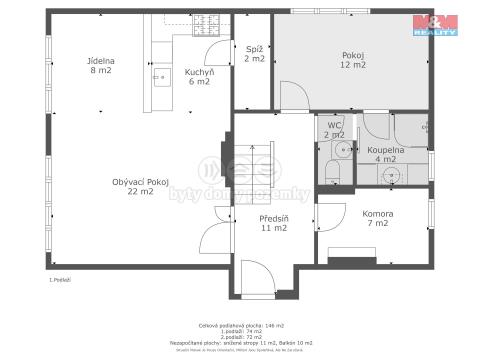
Hledáte prostorný a moderní byt pro velkou rodinu v klidném prostředí a při tom se skvělou dostupností centra Prahy? Nabízíme prostorný mezonetový byt 6+KK o celkové užitné ploše 143 m² + terasa 9 m2, nacházející se nedaleko krásného Prokopského údolí v lokalitě Na Farkáně, v Praze – Radlicích v 5. a 6. nadzemním podlaží cihlového bytového domu s výtahem. Dům prošel velmi zdařilou a citlivou rekonstrukcí. Vlastní byt sestává z velkého obývacího pokoje s kuchyňským a jídelním koutem, ložnice s koupelnou se sprchovým koutem a samostatného WC. Dále je zde komora, která Vám může posloužit i jako šatna nebo pracovna, spíž a prostorná vstupní chodba. V podkroví naleznete 4 prostorné pokoje, velkou koupelnu s vanou a komoru, kterou opět můžete využít i jako šatnu. O teplo a pohodu je postaráno podlahovým vytápěním s plynovým kotlem se samostatnými okruhy pro jednotlivé místnosti, což Vám zaručuje komfortní teplo. Podkroví je vytápěno radiátory. K bytu náleží jedno parkovací místo u domu.

 
zobrazit více
 
 
 


Doplňující informace:

ID inzerátu ESO: 4355523
Inzerát vydán: 29.08.2025
Inzerát aktualizován: 01.09.2025
ID zakázky v RK: 900914369
Budova je z: Cihla
Stav: Dobrý
Vlastnictví: Osobní
Umístění: Dobrý
Balkón: ANO
Užitná plocha: 143 m2
Energetická náročnost budovy:
C - Úsporná
 
 

 

Bleskový dotaz makléři

K prodeji, Byt 5+1, Praha 5, Na Farkáně III

Text dotazu *
Váš telefon *
Váš e-mail
Zobrazit kontaktní informace
Odeslat
 
 
 
 

Ve schránce je 0 inzerátů.

zobrazit celou schránku
 
 

Nalezli jsme dalších 24 nemovitostí v podobné ceně.

 
 
reklama