K prodeji, Byt 4+kk, 109 m2, Rynholec, Strašecká

 
 
 
Lokalita:
Rynholec, Strašecká
 
 
Cena:
7 290 000 Kč / za nemovitost
 
 
uvedená cena je: včetně provize Nabídněte prodejci Vaši cenu 
 
 

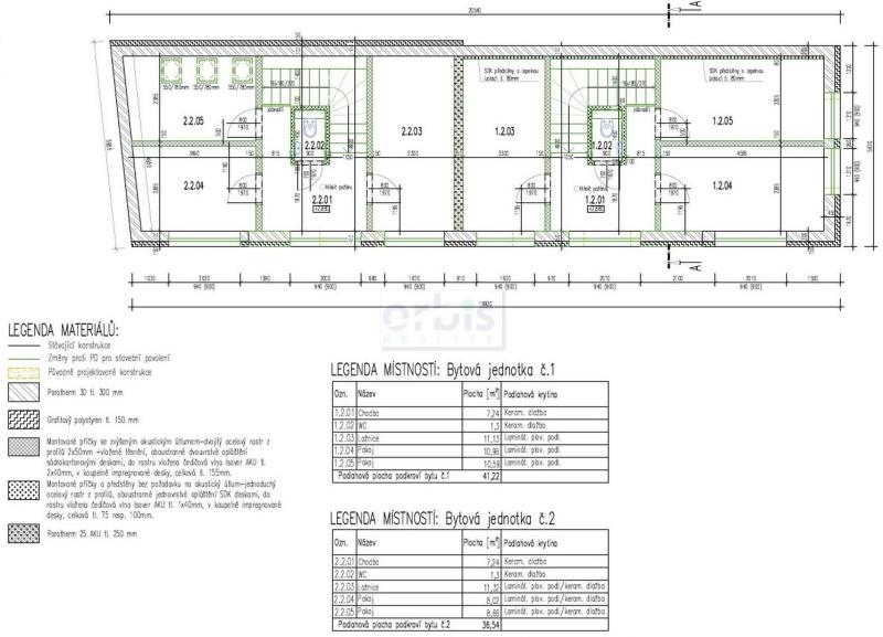
Nabízíme k prodeji nový, mezonetový byt v klidné části obce Rynholec, v rodinném domě se dvěma byty. Jedná se o byt o velikosti 4+kk, kdy čistě obytná plocha bytu činí 89,8 m2 + 13 m2 terasa a v ceně také parkovací stání pro dva automobily na vlastním pozemku u domu. V přízemí bytu se nachází vstupní chodba, koupelna se sprchovým koutem, rohovou vanou a WC, dále pak Obývací pokoj s kuchyňským koutem. V patře se potom nachází tři pokoje a druhá toaleta. Vytápění v celém bytě podlahové teplovodní z vlastního plynového kotle přes který je řešen i ohřev vody. V aktuální fázi možný výběr standardů které jsou v ceně - obklady, dlažby, podlahy, obložkové dveře. K prodeji je v domě e také druhý nový byt 4+kk/T, stání, o výměře 83,8 + 22,5 m2 terasa, za cenu 6.990.000,- Kč. Byty k nastěhování od 1.9.2026. Financování možné hypotékou. Rádi vyřídíme. Bydlení ve velmi klidné lokalitě u rybníka s dobrou dostupností na Prahu.

 
zobrazit více
 
 
 


Doplňující informace:

ID inzerátu ESO: 4393566
Inzerát vydán: 31.03.2026
Inzerát aktualizován: 28.04.2026
ID zakázky v RK: 0
Budova je z: Smíšená
Stav: Po rekonstrukci
Vlastnictví: Osobní
Umístění: Po rekonstrukci
Obytná plocha: 109 m2
Terasa: 13m2
Užitná plocha: 115 m2
Podlahová plocha: 109 m2
Energetická náročnost budovy:
C - Úsporná
 
 

 

Bleskový dotaz makléři

K prodeji, Byt 4+kk, 109 m2, Rynholec, Strašecká

Text dotazu *
Váš telefon *
Váš e-mail
Zobrazit kontaktní informace
Odeslat
 
 
 
 

Ve schránce je 0 inzerátů.

zobrazit celou schránku
 
 

Nalezli jsme dalších 8 nemovitostí v podobné ceně.

 
 
reklama