K prodeji, Byt 3+kk, 89 m2, Adamov, Smetanovo náměstí

 
 
 
Lokalita:
Adamov, Smetanovo náměstí
 
 
Cena:
6 641 416 Kč / za nemovitost
 
Včetně provize, právního servisu a všech poplatků.
 
Nabídněte prodejci Vaši cenu 
 
 

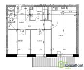
Dostupné bydlení v dosahu Brna a zároveň obklopené překrásnou přírodou? To Vám můžu nabídnout v nově vznikající Rezidenci Adamov. K prodeji je moderně řešený byt o dispozici 3+kk a rozměru 77 m2. K bytu náleží prostorná terasa s výměrou 9 m2. Byt se nachází v 3. nadzemním podlaží domu a náleží k němu sklep a kryté parkovací stání. Byt bude kromě osazení kuchyňské linky zcela zařízen a připraven k bydlení. V rámci klientských změn si můžete zvolit obklady, vybavení koupelny či podlahovou krytinu. Rezidence Adamov nabízí čtyři obytná podlaží s celkem 41 bytovými jednotkami a suterén sloužící pro parkování. Bytový dům je rozdělen na dvě neprůchozí části, z nichž každá část disponuje vlastním výtahem. Město Adamov leží uprostřed malebné krajiny Moravského krasu a kromě nádherného okolí s nespočtem turistických a cyklistický tras vybízejících k příjemně strávenému volnému času nabízí i skvělou dostupnost do Brna. A to nejen autem, ale i vlakem. Autobusové i vlakové nádraží je jen pár minut chůze od bytového domu. V Adamově je také k dispozici výborná občanská vybavenost. V těsné blízkosti domu najdeme obchod s potravinami, zdravotní středisko, školu, školku, dětské sportoviště nebo třeba knihovnu. Pokud Vás nezaujal tento konkrétní byt, tak mě pro více informací kontaktujte a můžeme se společně podívat na další volné byty.

 
zobrazit více
 
 
 


Doplňující informace:

ID inzerátu ESO: 4383021
Inzerát vydán: 05.02.2026
Budova je z: Cihla
Stav: Ve výstavbě (nezkolaudováno)
Vlastnictví: Osobní
Umístění: Ve výstavbě (nezkolaudováno)
Obytná plocha: 89 m2
Terasa: 9m2
Užitná plocha: 77 m2
Podlahová plocha: 89 m2
Plocha sklepa: 3 m2
Energetická náročnost budovy:
D - Méně úsporná
 
 

 

Bleskový dotaz makléři

K prodeji, Byt 3+kk, 89 m2, Adamov, Smetanovo náměstí

Text dotazu *
Váš telefon *
Váš e-mail
Zobrazit kontaktní informace
Odeslat
 
 
 
 

Ve schránce je 0 inzerátů.

zobrazit celou schránku
 
 

Nalezli jsme dalších 13 nemovitostí v podobné ceně.

 
 
reklama