K prodeji, Byt 3+kk, 81 m2, Frýdek-Místek, Karla Hynka Máchy

 
 
 
exkluzivně
 
Lokalita:
Frýdek-Místek, Karla Hynka Máchy
 
 
Cena:
6 000 000 Kč / za nemovitost
 
 
Nabídněte prodejci Vaši cenu 
 
 

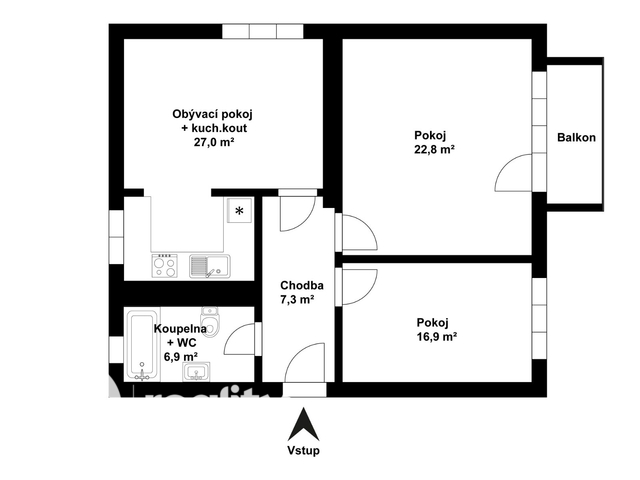
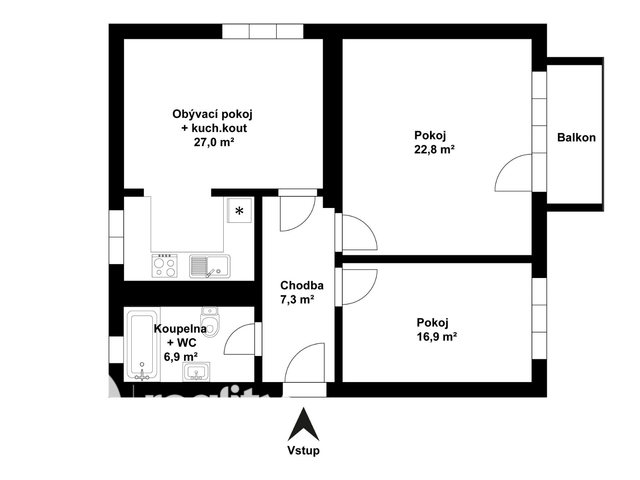
Prostorný 3+kk (81 m²) s balkonem v cihlovém domě po revitalizaci – Karla Hynka Máchy, Frýdek-Místek Hledáte byt, který má „to, co lidé chtějí“? Poctivá cihlová zástavba, klidný dům po revitalizaci (zateplení, plastová okna) a k tomu velkorysá výměra 81 m² – přesně takový si nyní můžete koupit. Byt prošel kompletní rekonstrukcí, elektroinstalace v mědi, sadrokartonové podhledy, led osvětlení, nové omítky, sanita, zkrátka vše je hotové a ve stavu jako nové. Dispozice je řešena jako 3+kk, nachází se v 1. podlaží, pokoje jsou neprůchozí, takže každý člen domácnosti má své soukromí. Jako příjemný bonus je tu balkon. Interiér je laděný do elegantního a nadčasového stylu bílá / dub – působí čistě, útulně a moderně, a zároveň se snadno doladí jakýmkoli nábytkem a doplňky. Byt má příjemnou atmosféru, kde se budete cítit doma hned po příchodu. Lokalita? Tady je to o pohodlí. Doslova pár metrů od domu máte řeku a cyklostezku – ideální na procházky, běh nebo kolo. A stejně tak pár metrů je i nákupní středisko FRÝDA, takže každodenní nákupy vyřídíte během chvilky. Celkově je tu skvělá dostupnost služeb i města pěšky během pár minut. Parkování je před domem, jako běžně v lokalitě. Shrnutí hlavních benefitů: + dispozice 3+kk + 81 m² + balkon + cihlový dům po revitalizaci (zateplení, plastová okna) + 1. podlaží + neprůchozí pokoje + moderní dekor bílá / dub + řeka, cyklostezka, nákupní centrum FRÝDA doslova pár metrů od domu - vše důležité v docházkové vzdálenosti ! Pokud chcete byt, který spojuje prostor, praktičnost a perfektní polohu pro každodenní život i volný čas, tohle je velmi silný kandidát. Pro více informací a domluvení prohlídky mě neváhejte kontaktovat.

 
zobrazit více
 
 
 


Doplňující informace:

ID inzerátu ESO: 4386542
Inzerát vydán: 24.02.2026
Inzerát aktualizován: 16.04.2026
ID zakázky v RK: 1858
Budova je z: Cihla
Stav: Po rekonstrukci
Vlastnictví: Osobní
Umístění: Po rekonstrukci
Obytná plocha: 81 m2
Balkón: 1m2
Užitná plocha: 81 m2
Energetická náročnost budovy:
G - Mimořádně nehospodárná
 
 

 

Bleskový dotaz makléři

K prodeji, Byt 3+kk, 81 m2, Frýdek-Místek, Karla Hynka Máchy

Text dotazu *
Váš telefon *
Váš e-mail
Zobrazit kontaktní informace
Odeslat
 
 
 
 

Ve schránce je 0 inzerátů.

zobrazit celou schránku
 
 

Nalezli jsme dalších 23 nemovitostí v podobné ceně.

 
 
reklama