K prodeji, Byt 3+kk, 120 m2, Prostějov, Havlíčkova

 
 
 
exkluzivně
 
Lokalita:
Prostějov, Havlíčkova
 
 
Cena:
3 990 000 Kč / za nemovitost
 
Cena včetně provize a právních služeb
 
uvedená cena je: včetně provize, k jednání Nabídněte prodejci Vaši cenu 
 
 

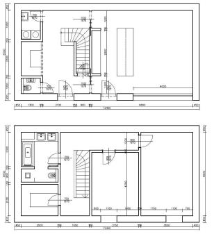
Prodej stavby k bydlení, která se nachází ve dvoře bytového domu na ul. Havlíčkova 18 ve městě Prostějově. Jedná se o nedokončenou stavbu ateliérového bytu, který je možné dostavět i jako bytovou jednotku. Zahradní dům se prodává ve stavu v jakém, dodělávky jsou na budoucím vlastníkovi. Součástí prodeje je podíl na zahradě, břemeno přístupu a vyhrazený prostor ve sklepě domu č.p. 2923. V současné době je domek spíše hrubá stavba s částečnou elektroinstalací. Jedná se o zděnou, patrovou stavbu s pultovou střechou s nízkým sklonem. Je potřeba dodělat rozvody vody, odpady a v patře pak i příčky. Pro bližší informace neváhejte kontaktovat realitního makléře Dušana. Rádi Vám pomůžeme s hypotečním úvěrem.

 
zobrazit více
 
 
 


Doplňující informace:

ID inzerátu ESO: 4342863
Inzerát vydán: 30.06.2025
Inzerát aktualizován: 19.02.2026
ID zakázky v RK: 7209600
Budova je z: Cihla
Stav: Ve výstavbě (nezkolaudováno)
Vlastnictví: Osobní
Umístění: Ve výstavbě (nezkolaudováno)
Zařízení bytu: Nezařízený
Obytná plocha: 120 m2
Plocha pozemku: 101 m2
Plyn: Není
Voda: Vodovod
Vytápění: Ústřední elektrické
Parkování: U domu (veřejné)
Terasa: ANO
Užitná plocha: 120 m2
Podlahová plocha: 120 m2
Plocha sklepa: 20 m2
Plocha zahrady: 163 m2
Energetická náročnost budovy:
G - Mimořádně nehospodárná
 
 

 

Bleskový dotaz makléři

K prodeji, Byt 3+kk, 120 m2, Prostějov, Havlíčkova

Text dotazu *
Váš telefon *
Váš e-mail
Zobrazit kontaktní informace
Odeslat
 
 
 
 

Ve schránce je 0 inzerátů.

zobrazit celou schránku
 
 

Nalezli jsme dalších 12 nemovitostí v podobné ceně.

 
 
reklama