K prodeji, Byt 3+kk, Nýrsko

 
 
 
Lokalita:
Nýrsko
 
 
Cena:
4 850 000 Kč / za nemovitost
 
 
uvedená cena je: včetně provize Nabídněte prodejci Vaši cenu 
 
 

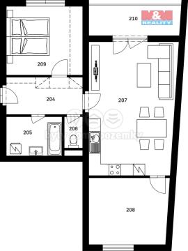
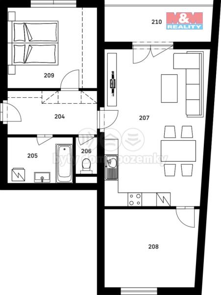
Nabízíme k prodeji byt 3+kk o ploše 72 m² ve 2. patře novostavby v centru Nýrska, pár kroků od náměstí. Byt je ve výstavbě, což umožňuje budoucímu majiteli dokončit interiér dle vlastních představ. V ceně jsou podlahy, dveře, obklady a sanita (bez kuchyňské linky). Nadstandardní vybavení je možné za příplatek. K bytu lze dokoupit garáž. Práce na bytě se začně provádět okamžitě po složení zálohy. Vytápění a ohřev vody zajišťuje moderní plynový kotel. Budova splňuje energetickou třídu B díky trojsklům, zateplení a venkovním žaluziím. Výhodou je bezbariérový vstup, výtah a čipové otevírání. Praktická je i šatna a komora. Nýrsko se nachází 10 km od Klatov a nabízí kompletní občanskou vybavenost, sportovní vyžití i výborné dopravní spojení. Vizualizace jsou pouze informativní dle půdorysu bytu. Pokud Vás naše nabídka zaujala, konktaktujte našeho makléře

 
zobrazit více
 
 
 


Doplňující informace:

ID inzerátu ESO: 4345149
Inzerát vydán: 08.07.2025
Inzerát aktualizován: 30.08.2025
ID zakázky v RK: 900911670
Budova je z: Cihla
Stav: Ve výstavbě (nezkolaudováno)
Vlastnictví: Osobní
Umístění: Ve výstavbě (nezkolaudováno)
Lodžie: ANO
Užitná plocha: 72 m2
Energetická náročnost budovy:
G - Mimořádně nehospodárná
 
 

 

Bleskový dotaz makléři

K prodeji, Byt 3+kk, Nýrsko

Text dotazu *
Váš telefon *
Váš e-mail
Zobrazit kontaktní informace
Odeslat
 
 
 
 

Ve schránce je 0 inzerátů.

zobrazit celou schránku
 
 

Nalezli jsme dalších 36 nemovitostí v podobné ceně.

 
 
reklama