K prodeji, Novostavba: Byt 3+kk, Frymburk

 
 
 
Lokalita:
Frymburk
 
 
Cena:
6 250 000 Kč / za nemovitost
 
 
uvedená cena je: včetně provize Nabídněte prodejci Vaši cenu 
 
 

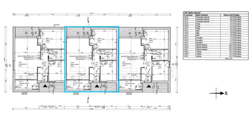
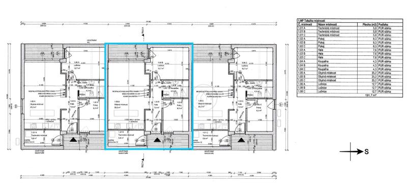
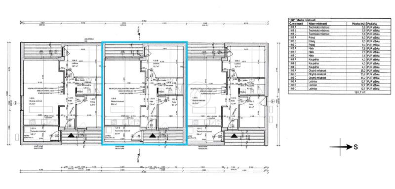
Nabízíme k prodeji moderní a promyšleně navržený apartmán 3+kk s lodžií, terasou a zahradou, který je součástí novostavby se třemi bytovými jednotkami ve vyhledávané lokalitě Frymburk, přímo u Lipenské přehrady. Jedná se o jednotku s dispozičně vhodně navrženým půdorysem, kterému dominuje prostorný obývací pokoj spojený s kuchyní, jídelnou a vstupem na terasu. Dále jsou součástí dvě ložnice, koupelna s WC a technická místnost s možností uložení zavazadel, kol atd. Cena zahrnuje podlahové krytiny, dveře, sanitární vybavení a dvě parkovací stání. Výhodou jsou portálová okna, krytá lodžie a možnost využití zahrádky o rozloze dalších 30 m². Apartmán je zkrátka navržený pro pohodlnou rekreaci Vaší rodiny a blízkých. Apartmán je součástí jednopodlažní nepodsklepené dřevostavby se sedlovou střechou a třemi bytovými jednotkami. Objekt je zateplený tepelnou izolací a fasádním polystyrenem dle norem ČSN a minerální omítkou v kombinaci se Sibiřském modřínem. Kolaudace leden 2023. Vytápění bytu je řešeno vlastním elektrokotlem PROTHERM 6 kW napojeným na podlahové vytápění, dále jsou provedeny veškeré rozvody pro případné vytápění tepelným čerpadlem. V obývacím pokoji je připravený komín na napojení krbových kamen. K jednotce patří podíl na společných prostorech zahrady, která má plochu 571 m². K prodeji je také vedlejší jednotka "C". V okolí Frymburku najdete vše, co potřebujete k bydlení a rekreaci, obchody, kavárny, cyklostezky, Wellness centrum, pláž a další. Poloha největší vodní plochy v srdci Šumavy láká v každém ročním období. • prostorný obývací pokoj s jídelním prostorem, • přímý vstup na terasu a zahrádku • dvě ložnice • dvě parkovací stání • technická místnost vhodná pro úložné prostory (kola, zavazadla apod.) Zarezervujte si nové rodinné sídlo v top lokalitě u vody v krásné přírodě, v podobě investice s pravidelným výnosem a dlouhodobým zhodnocením, kdy turistický ruch na Lipně roste. Exkluzivně nabízíme celoroční údržbu a správu pronájmu nové nemovitosti v období Vaší nepřítomnosti. Kontaktujte specialistu na investice v lipenské lokalitě pro více informací, popřípadě se zastavte na nezávaznou prohlídku.

 
zobrazit více
 
 
 


Doplňující informace:

ID inzerátu ESO: 4238416
Inzerát vydán: 15.04.2024
Inzerát aktualizován: 18.02.2026
ID zakázky v RK: 6486560
Budova je z: Dřevostavba
Stav: Nerozhoduje
Vlastnictví: Osobní
Umístění: Nerozhoduje
Zařízení bytu: Částečně zařízený
Parkování: Venkovní stání
Lodžie: ANO
Plocha zahrady: 30 m2
Energetická náročnost budovy:
B - Velmi úsporná
 
 

 

Bleskový dotaz makléři

K prodeji, Novostavba: Byt 3+kk, Frymburk

Text dotazu *
Váš telefon *
Váš e-mail
Zobrazit kontaktní informace
Odeslat
 
 
 
 

Ve schránce je 0 inzerátů.

zobrazit celou schránku
 
 

Nalezli jsme dalších 21 nemovitostí v podobné ceně.

 
 
reklama