K prodeji, Byt 3+1, 94 m2, Poděbrady, Dr. Horákové

 
 
 
exkluzivně
nový
 
Lokalita:
Poděbrady, Dr. Horákové
 
 
Cena:
7 957 325 Kč / za nemovitost
 
 
Nabídněte prodejci Vaši cenu 
 
 

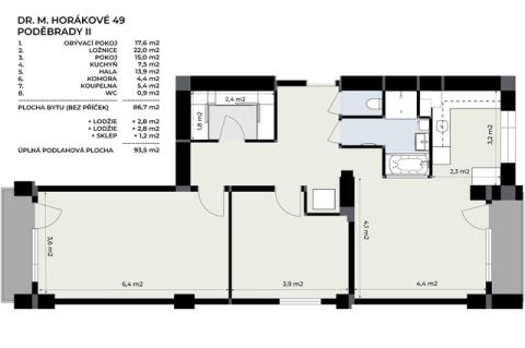
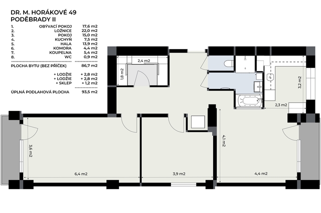
S tímhle bytem vám nebude ani trošku vadit, že za okny sněží. Strávit v něm celý den není za trest, ale za odměnu. Jsme v Poděbradech, v bytě 3+1 o užitné ploše přes 86 metrů, s příslušenstvím dokonce 94. Po kompletní moderní rekonstrukci, v jedenáctém - předposledním - patře zatepleného panelového domu. V praxi to znamená: spousta světla, výhledy, ticho – a žádné starosti. Hned za vstupem vás přivítá velkorysá hala. Ne stísněný tunel, ale prostor, kde se dá žít – převléct děti, složit tašky, postavit botník i lavici. Praktická nika na pračku a sušičku drží technické věci mimo obytnou část. A teď do ložnice, kde rána začínají a večery končí. Na více než 22 metrech se sem vejde velká postel, skříň i pracovní stůl a pořád tu zůstane místo, aby místnost dýchala. Velká okna, vstup na lodžii. Místo, kde si člověk neukopne palec o postel a klidně si zacvičí jógu. Přesuňme se rovnou do kuchyně. Ne malá, ne obří – tak akorát. Čisté linie, úložné prostory, vestavné spotřebiče AEG, indukce, mikrovlnka, trouba, a k tomu americká lednice s výrobníkem ledu. Velké okno poskytne světlo pro všechna vaše kulinářská kouzla – a když kouzlo selže, snadno vyvětráte. Obývací pokoj - velký světlý prostor, kam se vejde sedačka, konferenční stolek, televize i pracovní nebo herní koutek. Podlaha s ořechovým dekorem a stěna z luxfer dodávají místnosti útulnost a moderní čistotu. Místnost, která neurazí žádný vkus a snadno se doladí do vašeho stylu. Součástí obýváku je jídelní kout u oken – světlo, prostor na velký stůl a místo, kde se sedí dobře ráno i večer. A hned vedle vstup na druhou lodžii. Další pokoj může být čímkoliv – dětský, studentský, pracovna nebo místnost pro virtuální realitu. Tak akorát velký, uprostřed bytu. Z haly se dostanete do místnosti, která spoustě lidí splní velký sen – šatnu. Skutečnou walk-in šatnu se systémem polic, zásuvek a věšáků, kam schováte sezónní oblečení, kufry i sportovní vybavení, a byt přesto působí uklizeně. Domácí wellness, nebo, chcete-li, koupelna. Dominantní červenobílé obklady, skleněná stěna z luxfer, skříňka s umyvadlem a hlavně masážní vana s podsvícenou vodou. Stačí napustit, zapálit svíčku a máte večerní spa. Pokud není čas na dlouhý relax, je tu velký sprchový kout a žebříkový radiátor. Samostatné WC je samozřejmostí. Byt má dvě lodžie – západní z obýváku, východní z ložnice. Ranní káva nad Poděbrady, večerní sklenka při západu slunce. Z 11. patra je vidět pěkně daleko. Dům je zateplený, má dva výtahy, dva vchody, zadní bez bariér díky rampě. Udržovaný vstup, kolem domu zeleň, parkování v okolí relativně snadné. Sportoviště, školy, nákupy, náměstí i vlak máte na dohled. A když chcete vyměnit panel za kolonádu, lázeňský park a řeku, jste tam za pár minut. Večer se vrátíte nahoru, zavřete byt – a klid nad městem je zase váš. Jestli hledáte hotový, funkční rodinný byt 3+1 bez dalších investic, kde všechno dává smysl a dobře se žije, může to být váš nový domov. Vůbec na nic nečekejte, vemte telefon a zavolejte.

 
zobrazit více
 
 
 


Doplňující informace:

ID inzerátu ESO: 4373713
Inzerát vydán: 04.12.2025
ID zakázky v RK: 0076
Budova je z: Panel
Stav: Po rekonstrukci
Vlastnictví: Osobní
Umístění: Po rekonstrukci
Obytná plocha: 94 m2
Lodžie: 5m2
Užitná plocha: 86 m2
Podlahová plocha: 94 m2
Plocha sklepa: 1 m2
Zastavěná plocha: 429 m2
Energetická náročnost budovy:
C - Úsporná
 
 

 

Bleskový dotaz makléři

K prodeji, Byt 3+1, 94 m2, Poděbrady, Dr. Horákové

Text dotazu *
Váš telefon *
Váš e-mail
Zobrazit kontaktní informace
Odeslat
 
 
 
 

Ve schránce je 0 inzerátů.

zobrazit celou schránku
 
 

Nalezli jsme dalších 10 nemovitostí v podobné ceně.

 
 
reklama