K prodeji, Byt 3+1, 79 m2, Praha 9, Martinická

 
 
 
exkluzivně
 
Lokalita:
Praha 9, Martinická
 
 
Cena:
9 295 000 Kč / za nemovitost
 
Cena včetně provize a kompletního právního servisu.
 
Nabídněte prodejci Vaši cenu 
 
 

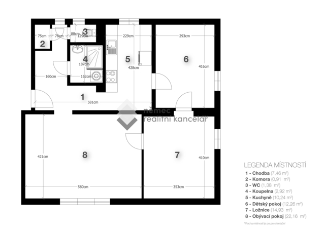
Chtěli byste koupit větší byt ve Kbelích, nejlépe přímo v jejich srdci - u Centrálního parku a Pivovarského rybníku? Mít u domu podniky jako Zastávka U Srubu nebo Kbelský pivovar? Pak vás bude zajímat prodej zrekonstruovaného bytu 3+1 o celkové ploše 79,68 m² v cihlovém domě umístěném v lokalitě, kde se moc často nic neprodává. Tento prakticky řešený byt se nachází ve 3. NP (2.patro) revitalizované a dobře fungující budovy a je orientován na tři světové strany. Je tak velmi dobře větratelný a nabízí hezké výhledy do okolní zeleně. Prošel v roce 2021 náročnou generální rekonstrukcí veškerých vnitřních povrchů, rozvodů a bytového jádra. Laděn je dekory do moderní a nadčasové kombinace bílé, šedé a černé. Dispozice tohoto 3+1: Po vstupu do bytu se octnete v prostorné centrální chodbě (7,46 m²), z níž je možné vstoupit doprava do obývacího pokoje (22,16 m²) orientovaného na jih. Na ten navazuje velká ložnice (14,93 m²) orientovaná, stejně jako dětský pokoj (12,26 m²) na východ. Dětský pokoj je přístupný i z druhé části bytu z kuchyně (10,24 m²), která má okno na severní stranu před dům. Je zařízena linkou na míru vč. vestavných spotřebičů na míru. Nabízí jídelní kout, ačkoliv je obývací pokoj dostatečně prostorný pro jídelní stůl. Stejným směrem je i okno z předsíně a toalety (1,38 m²). Odvětrávaná je i spíž (0,91 m²). Praktická je pak koupelna, která nabízí kromě velkého walk-in sprchového koutu prostor pro pračku se sušičkou. Jako úložný prostor slouží hned dva veliké bezbariérové sklepy, jeden zděný a jeden laťkový (4,40 a 3,02 m²). Praktický je samostatný vjezd pro kočárek a jízdní kolo přímo do sklepních prostor ke kolárně. Jedná se o velmi dobře fungující SVJ. Každé jednotce připadá výnos z nájmu nebytových prostor. Dům je zateplen, nyní se plánuje čištění fasády. Místní vědí, že v okolí nemovitosti naleznete opravdu vše pro pohodlný život. Pouhé 2 min pěšky najdete stanici vlaku Praha - Kbely, potraviny, ZŠ a MŠ, několik dětských hřišť, lékárnu, venkovní posilovnu, sokolovnu. Za tratí je oblíbený prales s bludištěm a broukovištěm, prakticky u domu začíná několik cyklostezek a slavná inline dráha. Na sporovní aktivity je perfektní i Lesopark Letňany s pumptracky, dalšími dětskými hřišti, venkovní posilovnou a discgolfem. Málem bych ve výčtu zapomněl na Vinořský park a golfové hřiště. Jedná se opravdu o skvělé místo pro život v lokalitě se zelení a vyžitím pro všechny generace. Nenechte si ujít tuhle jedinečnou příležitost, vřele doporučujeme.

 
zobrazit více
 
 
 


Doplňující informace:

ID inzerátu ESO: 4388807
Inzerát vydán: 08.03.2026
Inzerát aktualizován: 03.04.2026
ID zakázky v RK: 1142
Budova je z: Cihla
Stav: Velmi dobrý
Vlastnictví: Osobní
Umístění: Velmi dobrý
Obytná plocha: 79 m2
Užitná plocha: 79 m2
Podlahová plocha: 79 m2
Plocha sklepa: 7 m2
Energetická náročnost budovy:
C - Úsporná
 
 

 

Bleskový dotaz makléři

K prodeji, Byt 3+1, 79 m2, Praha 9, Martinická

Text dotazu *
Váš telefon *
Váš e-mail
Zobrazit kontaktní informace
Odeslat
 
 
 
 

Ve schránce je 0 inzerátů.

zobrazit celou schránku
 
 

Nalezli jsme dalších 70 nemovitostí v podobné ceně.

 
 
reklama