K prodeji, Byt 3+1, 77 m2, Ostrava, Jugoslávská

 
 
 
Lokalita:
Ostrava, Jugoslávská
 
 
Cena:
3 550 000 Kč / za nemovitost
 
 
uvedená cena je: včetně provize Nabídněte prodejci Vaši cenu 
 
 

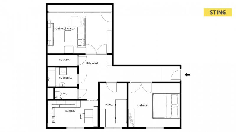
Exkluzivně nabízíme dr. byt o vel. 3+1 s lodžií, na ul. Jugoslávská v Ostravě Zábřehu. Jedná se o atraktivní a žádanou lokalitu, a to především díky umístění v blízkosti zástavby rodinných domů a obchodního centra Avion Shopping park. Byt se nachází v 8.NP/8.NP, v panelovém domě po revitalizaci. V chodbě je umístěna vestavná skříň a komora. Koupelna (po rekonstrukci) – zděné jádro, vana, umyvadlo, zrcadlo, poličky, pračka, obklady, dlažba. WC (po rekonstrukci) je samostatně. Byt je velmi zachovalý, v udržovaném, čistém a pěkném stavu. Kuchyň – rohová kuchyňská linka s dostatečným množstvím pracovní plochy a úložného prostoru. V rohu je jídelní stůl pro 4 osoby. K vybavení patří plynový sporák s elektrickou troubou, digestoř a lednice s mrazákem. Ložnice má prostor pro velkou manželskou postel, šatní skříň a pracovní kout. Další pokoj je ideální pro děti, šatnu či pracovnu. Chloubou bytu je velký a prostorný obývací pokoj se vstupem na lodžii o rozloze 5m2. Výhodou bytu jsou okna na dvě světové strany. Náklady na bydlení 5.371,– Kč /1os (včetně FO ve výši 2.459,–Kč). K bytu náleží sklepní kóje. V pěší vzdálenosti veškerá občanská vybavenost (obchod Shopping Park přes ulici, školka, ZŠ, MHD). Byt je volný a připravený ihned k nastěhování. Těším se na prohlídku s Vámi. V případě více zájemců si majitel vyhrazuje právo prodat nejvýhodnější nabídce. Do konce prosince 2025 nabízíme prostřednictvím našeho partnera úrokové sazby od 4,29 % p.a. Více informací Vám sdělí náš specialista na prohlídce.

 
zobrazit více
 
 
 


Doplňující informace:

ID inzerátu ESO: 4369070
Inzerát vydán: 11.11.2025
Inzerát aktualizován: 28.11.2025
ID zakázky v RK: 133774
Budova je z: Panel
Stav: Velmi dobrý
Vlastnictví: Družstevní
Umístění: Velmi dobrý
Obytná plocha: 77 m2
Lodžie: ANO
Užitná plocha: 77 m2
Podlahová plocha: 77 m2
 
 

 

Bleskový dotaz makléři

K prodeji, Byt 3+1, 77 m2, Ostrava, Jugoslávská

Text dotazu *
Váš telefon *
Váš e-mail
Zobrazit kontaktní informace
Odeslat
 
 
 
 

Ve schránce je 0 inzerátů.

zobrazit celou schránku
 
 

Nalezli jsme dalších 163 nemovitostí v podobné ceně.

 
 
reklama