K prodeji, Byt 3+1, Cheb, 17. listopadu

 
 
 
Lokalita:
Cheb, 17. listopadu
 
 
Cena:
3 699 000 Kč / za nemovitost
 
 
uvedená cena je: včetně provize Nabídněte prodejci Vaši cenu 
 
 

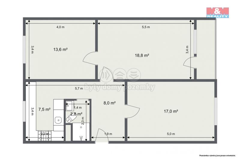
Nabízíme k prodeji zrekonstruovaný byt 3+1 o užitné ploše 67 m², který se nachází v klidné části Chebu na sídlišti. Byt je umístěn ve 3. podlaží pětipodlažního panelového domu. Nemovitost prošla kompletní rekonstrukcí, což zaručuje moderní a komfortní bydlení bez dalších investic. Byt disponuje čtyřmi místnostmi, které poskytují dostatek prostoru pro rodinné bydlení či investiční příležitost. Díky své poloze nabízí veškerou občanskou vybavenost, včetně škol, obchodů a dopravy, v dosahu několika minut. Neváhejte nás kontaktovat pro více informací či prohlídku tohoto atraktivního bytu.

 
zobrazit více
 
 
 


Doplňující informace:

ID inzerátu ESO: 4355888
Inzerát vydán: 29.08.2025
Inzerát aktualizován: 30.08.2025
ID zakázky v RK: 900911616
Budova je z: Panel
Stav: Po rekonstrukci
Vlastnictví: Osobní
Umístění: Po rekonstrukci
Balkón: ANO
Užitná plocha: 67 m2
Energetická náročnost budovy:
C - Úsporná
 
 

 

Bleskový dotaz makléři

K prodeji, Byt 3+1, Cheb, 17. listopadu

Text dotazu *
Váš telefon *
Váš e-mail
Zobrazit kontaktní informace
Odeslat
 
 
 
 

Ve schránce je 0 inzerátů.

zobrazit celou schránku
 
 

Nalezli jsme dalších 41 nemovitostí v podobné ceně.

 
 
reklama