K prodeji, Byt 2+kk, 44 m2, Kolín, Raisova

 
 
nový
 
Lokalita:
Kolín, Raisova
 
 
Cena:
4 400 000 Kč / za nemovitost
 
Včetně právního servisu a provize RK
 
Rezervováno Nabídněte prodejci Vaši cenu 
 
 

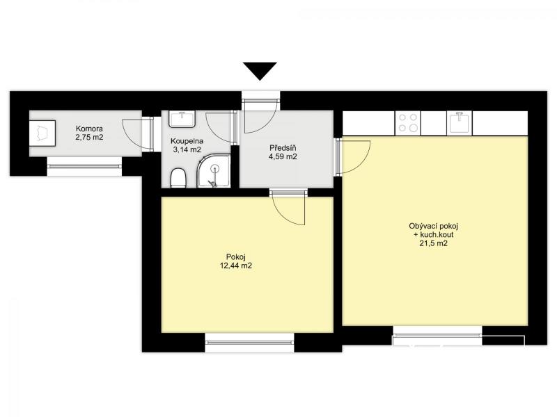
Nabízíme Vám ateliér o dispozici 2+kk a velikosti 44 m2 ve druhém patře prvorepublikové vily v Kolíně Zálabí, který je zařízen a vybaven jako pohodlný byt. Tento ateliér vznikl před dvěma lety, kdy byl dům, ve kterém se nachází kompletně zrekonstruován. V domě jsou celkem tři byty, ateliér, kanceláře a sauna. Ateliér je díky velkým Eurooknům a světlému interiéru příjemně prosluněný. Ateliér je prostorný a je zde jasně vidět spolupráce s architektkou, vznikl velice vkusný a praktický prostor s obývacím pokojem a kuchyní, ložnice, koupelna s WC a komora. Kuchyň je vybavena troubou, mikrovlnou troubou, lednicí, myčkou a indukcí. Nejčastěji používaný materiál je zde dřevo, vč. podlahové krytiny, díky tomu působí byt příjemným a teplým dojmem. V ložnici je položený koberec. Celkově byl při rekonstrukci domu kladen důraz na kvalitu použitých materiálů. Byt se prodává včetně veškerého nábytku a vybavení, např. televizor, pračka, myčka. Vytápění je zde pomocí tepelného čerpadla na principu vzduch - voda, tudíž slouží i pro ohřev vody. Náklady na topení, vodu a elektřinu činí cca 3 až 4 tisíce korun. Zahrada je stejně jako sauna k dispozici všem vlastníkům jednotek. Nyní se pracuje na založení SVJ, papírová forma je již připravena, jedná se pouze o doladění s úřady. Toto bydlení je vhodné pro ty z Vás, kteří nechtějí bydlet v panelovém domě a ocení benefit ke svému bydlení v podobě pobytu na zahradě, která má ve své zadní části pergolu, či možnost využít saunu. V centru Kolína jste svižnou chůzí za 10 min. Na byt lze uplatnit odpočet DPH (12%), v tom případě je cena 3,928.571,- Kč. Pokud Vás nabídka zaujala, kontaktujte mne, ráda Vás bytem a zahradou provedu. S financováním Vám můžeme pomoci.

 
zobrazit více
 
 
 


Doplňující informace:

ID inzerátu ESO: 4373685
Inzerát vydán: 04.12.2025
ID zakázky v RK: 971
Budova je z: Cihla
Stav: Po rekonstrukci
Vlastnictví: Osobní
Umístění: Po rekonstrukci
Obytná plocha: 44 m2
Užitná plocha: 44 m2
Podlahová plocha: 44 m2
Plocha zahrady: 391 m2
Energetická náročnost budovy:
D - Méně úsporná
 
 

 

Bleskový dotaz makléři

K prodeji, Byt 2+kk, 44 m2, Kolín, Raisova

Text dotazu *
Váš telefon *
Váš e-mail
Zobrazit kontaktní informace
Odeslat
 
 
 
 

Ve schránce je 0 inzerátů.

zobrazit celou schránku
 
 

Nalezli jsme dalších 24 nemovitostí v podobné ceně.

 
 
reklama