K prodeji, Byt 2+kk, 40 m2, Jičín, Sokolovská

 
 
 
exkluzivně
nový
 
Lokalita:
Jičín, Sokolovská
 
 
Cena:
4 295 000 Kč / za nemovitost
 
Cena včetně provize a kompletního právního servisu.
 
Nabídněte prodejci Vaši cenu 
 
 

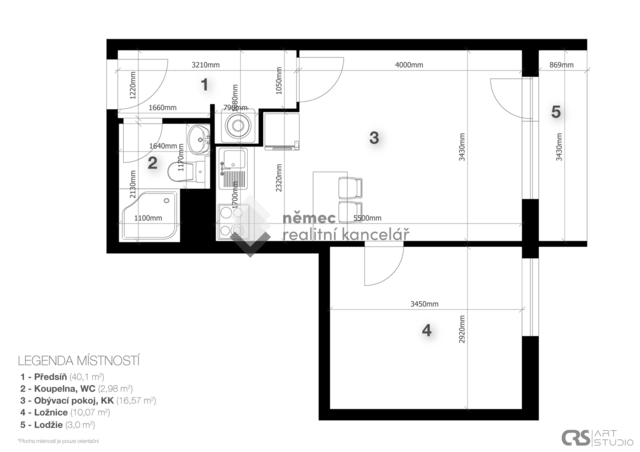
Prodej zbrusu nově a stylově zrekonstruovaného bytu 2+kk o ploše 40 m² s příslušenstvím (komora vedle bytu - 1,5 m² a sklep v 1. PP - 2 m²) ve 2. patře (3. NP) panelového domu nacházejícího se přímo u vstupu do nově vznikající Odpočinkové zóny Cidlina a pouhých 600 metrů od Zámeckého parku a historického centra města Jičína. Jsou byty a byty. Troufáme si říct, že tohle je TEN byt. Minimalistický design lahodící oku - na podlaze je rigidní vinylová podlaha v dekoru Oak, kvalitní kuchyň na míru s barem od profesionálního truhlářského studia Truhlárna74 barevně kombinuje kouřově zelenou s tenkou pracovní deskou v dekoru kamene Calcit oblázkově šedém. K tomu všemu černé doplňky, vestavné spotřebiče (hork. trouba, odsavač par, indukční varná deska, větší kombinovaná lednice s mrazákem, myčka) a černý granitový dřez s baterií. Oceníte dvě řady horních skřínek a LED osvětlení, nebo třeba zásuvku (vč. USB) v pracovní desce baru. Na fotkách chybí černé úchytky Nakana spodních skřínek (budou doplněny po uveřejnění nabídky). Bytová jednotka je po generální a zdařilé rekonstrukci - nová okna Hilzinger s izolačními trojskly a nadstandardními profily Master88, nová zeď na lodžii vč. zateplení extrudovaným polystyrenem, nový rozvod topení v mědi s plochými topnými tělesy na stěně, zděné jádro s unikátní dispozicí, veškeré vnitřní rozvody (elektro vč. černých datových/anténních zásuvek ABB a racku na router), omítky, povrchy, instalace, kvalitní vinylová podlaha, bílé interiérové dveře s černým kováním. Obývací pokoj s lodžií je, stejně jako sousední ložnice, orientovaný na jih a nabízí pohled do zeleně. Ložnici je možné doplnit o vestavnou skříň po pravé stěně (návrh připravíme), stejně tak je možné přidat podstropní skřínku, botník a věšák do předsíně. Koupelna je v decentní kombinaci šedé, černé, bílé a dřeva. Oceníte široký walk-in sprchový kout, závěsné wc, designové topidlo, odvětrávání a zrcadlo s led osvětlením. Ideální byt vhodný k okamžitému nastěhování, nebo připravený na pronájem. Byt jsme schopni rychle pronajmout, o nájemní bydlení je zde velký zájem. Nízké měsíční poplatky (2374,- Kč vč. fondu oprav). Velmi dobře fungující svj. Plánuje se revitalizace lodžií a nové zateplení budovy (budova je již zateplena, jedná se vnější vzhled). V okolí nemovitosti naleznete opravdu vše pro pohodlný život. Odpočinková zóna Cidlina s mobilní kavárnou, pobytovými loukami, cyklostezkami a dalšími prvky, je již v započaté výstavbě (dokončení 2026) a bude mít vstup přes ulici. Trasa pěšky na Valdštejnovo náměstí zabere opravdu jen pár minut - a za chvilku si můžete vychutnávat kávu v Kroku nebo Všehochuti. Na dobré jídlo si můžete zaběhnout do Prosecca (3 min pěšky), do Biografu a Zámeckého parku je to vlastně jen jednou ulicí vedoucí přímo od domu. Nenechte si ujít tuhle jedinečnou příležitost, vřele doporučujeme.

 
zobrazit více
 
 
 


Doplňující informace:

ID inzerátu ESO: 4391674
Inzerát vydán: 18.03.2026
Inzerát aktualizován: 23.03.2026
ID zakázky v RK: 1146
Budova je z: Panel
Stav: Velmi dobrý
Vlastnictví: Osobní
Umístění: Velmi dobrý
Obytná plocha: 40 m2
Lodžie: 3m2
Užitná plocha: 40 m2
Podlahová plocha: 40 m2
Plocha sklepa: 4 m2
Energetická náročnost budovy:
C - Úsporná
 
 

 

Bleskový dotaz makléři

K prodeji, Byt 2+kk, 40 m2, Jičín, Sokolovská

Text dotazu *
Váš telefon *
Váš e-mail
Zobrazit kontaktní informace
Odeslat
 
 
 
 

Ve schránce je 0 inzerátů.

zobrazit celou schránku
 
 

Nalezli jsme dalších 6 nemovitostí v podobné ceně.

 
 
reklama