K prodeji, Byt 2+kk, Praha 6, Za Pohořelcem

 
 
nový
 
Lokalita:
Praha 6, Za Pohořelcem
 
 
Cena:
19 900 000 Kč / za nemovitost
 
 
uvedená cena je: včetně provize Nabídněte prodejci Vaši cenu 
 
 

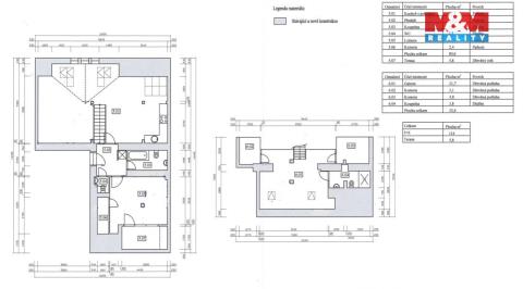
Nabízíme k prodeji výjimečný a atypický podkrovní byt 2+kk o 114 m² s terasou 5,8 m², umístěný v 5. NP domu s výtahem v prestižní pražské lokalitě Za Pohořelcem. Už při vstupu zaujme prostorný obývací pokoj s kuchyní, který vytváří příjemné a reprezentativní prostředí pro každodenní život i setkávání. Dispozice dále zahrnuje koupelnu s vanou a WC, samostatný pokoj se vstupem na terasu, šatnu a další WC. Z obývací části vede designové schodiště do podkrovní ložnice, kde se nachází druhá koupelna se sprchou, WC a dvě šatny, což podtrhuje praktičnost a soukromí tohoto bytu. K bytu náleží podíl na rozlehlé zahradě o 530 m², která poskytuje klidné místo – výhoda, která je v Praze spíše vzácností. Nemovitost je vhodná pro ty, kteří hledají prostor, soukromí a osobitou atmosféru podkrovního bydlení v prestižní lokalitě. Skvělá dopravní dostupnost – tramvajové zastávky Pohořelec a Malovanka jsou pár minut chůze, rychlé spojení na metro A . Do centra se snadno dostanete i autem.

 
zobrazit více
 
 
 


Doplňující informace:

ID inzerátu ESO: 4375057
Inzerát vydán: 14.12.2025
Inzerát aktualizován: 15.12.2025
ID zakázky v RK: 900927927
Budova je z: Cihla
Stav: Dobrý
Vlastnictví: Osobní
Umístění: Dobrý
Užitná plocha: 114 m2
Energetická náročnost budovy:
E - Nehospodárná
 
 

 

Bleskový dotaz makléři

K prodeji, Byt 2+kk, Praha 6, Za Pohořelcem

Text dotazu *
Váš telefon *
Váš e-mail
Zobrazit kontaktní informace
Odeslat
 
 
 
 

Ve schránce je 0 inzerátů.

zobrazit celou schránku
 
 

Nalezli jsme dalších 14 nemovitostí v podobné ceně.

 
 
reklama