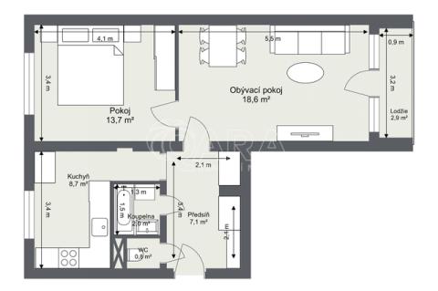
Hledáte bydlení v klidné a žádané lokalitě? Nabízím k prodeji světlý byt 2+1 o výměře 51,1 m² v pražských Strašnicích. K bytu náleží lodžie (2,8 m²), která je přístupná z obývacího pokoje a sklep (2 m²). Samotný byt je v udržovaném stavu se zděným jádrem. Případně je připraven pro úpravy a modernizace dle vlastních představ nového majitele. Byt má prostornou předsíň (7,2 m²), kde lze vytvořit dostatek úložných prostor. WC a koupelna jsou oddělené. Měsíční náklady na bydlení činí 2 409 Kč (plus elektřina a plyn dle dodavatele). Lokalita Strašnic patří mezi žádané části Prahy díky skvělé kombinaci klidného prostředí a dobré dostupnosti do centra. Stanice metra Strašnická je vzdálena pouhých 5 minut chůze. V okolí se nachází kompletní občanská vybavenost - obchody, restaurace, školy, školky i sportovní a volnočasové vyžití. Cena bytu je 7 390 000,- Kč, včetně provize, právního servisu, bezpečné úschovy a všech poplatků. Byt je možné financovat hypotékou, s čímž vám rád pomůže náš hypoteční specialista. Pro více informací nebo domluvení prohlídky mě neváhejte kontaktovat.
Tel: 736 134 571 vojtech.grundel@qara.cz
Šafaříkova 201/17, 120 00 Praha 2 www.qara.cz/
Ve schránce je 0 inzerátů.
K prodeji, Byt 1+kk, 35 m2 Nad Primaskou
K prodeji, Byt 3+1, 85 m2 Krátká
K prodeji, Byt 2+kk, 67 m2 Májovková
K prodeji, Byt 1+1, 41 m2 Ruská
K prodeji, Byt 1+kk, 43 m2 Přípotoční
K prodeji, Byt 2+1, 73 m2 Přetlucká
K prodeji, Byt 1+kk, 34 m2 Jindřicha Bubeníčka
K prodeji, Byt 2+kk, 45 m2 Praha 10, Michle