K prodeji, Novostavba: Byt 2+1, Brno, Brno-střed, Plynárenská

 
 
 
Lokalita:
Brno, Brno-střed, Plynárenská
 
 
Cena:
6 742 000 Kč / za nemovitost
 
 
Nabídněte prodejci Vaši cenu 
 
 

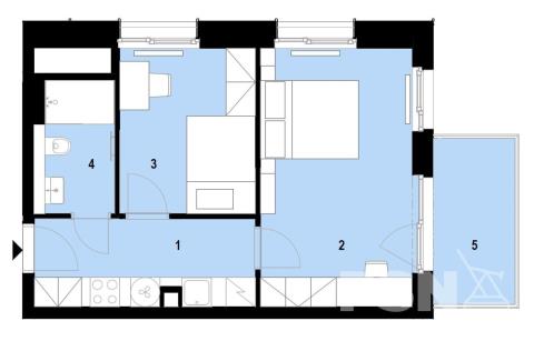
Jednotka, která dokáže vydělávat. Pokud hledáte investici s nadstandardním výnosem, tato jednotka je přesně tím, co na brněnském trhu funguje nejlépe. Dispozice 2+1 a docházková vzdálenost do centra ve městě s jednou z největších koncentrací studentů v ČR umožňují pronajímat každý pokoj samostatně. Tento model je dlouhodobě jedním z nejekonomičtějších a zajišťuje vysokou obsazenost s výrazně vyšším měsíčním příjmem. Dispozice 2+1 a celková plocha 39,7 m² ve 4. podlaží poskytují promyšleně řešený prostor, který je ideální jak pro investiční účely, tak pro budoucí vlastní bydlení. Jednotka nabízí dva neprůchozí pokoje, kuchyň, elegantní koupelnu se sprchovým koutem a WC a navíc na východ orientovaný balkon o velikosti 6,1 m², díky čemuž je byt krásně prosvětlený po celý den. Prostor bude připraven k nastěhování ve vysokém standardu – okna s izolačními trojskly, dokončenými podlahami, vybavenou koupelnou a prostorem připraveným pro instalaci kuchyňské linky. K dispozici je příprava pro venkovní stínění. K jednotce je třeba pořídit sklepní kóji a parkovací stání. Budova Neon&Xenon představuje moderní bydlení s kompletním zázemím a výbornou dostupností a nabízí širokou škálu rezidenčních služeb: střešní terasu s grilem, workout zónu, prádelny, společenskou místnost, kavárnu, kolárnu i kočárkárnu. Objekt bude součástí nově vznikající čtvrti Brno Jedna s náměstím a přilehlým parkem, cyklostezkami, sportovišti a dalšími službami. Do centra města se dostanete během 5 minut MHD nebo autem. Termín dokončení stavby a předání jednotek je konec roku 2027.

 
zobrazit více
 
 
 


Doplňující informace:

ID inzerátu ESO: 4246457
Inzerát vydán: 14.05.2024
Inzerát aktualizován: 12.01.2026
ID zakázky v RK: 6490440
Budova je z: Smíšená
Stav: Nerozhoduje
Vlastnictví: Osobní
Umístění: Nerozhoduje
Balkón: ANO
Energetická náročnost budovy:
A - Mimořádně úsporná
 
 

 

Bleskový dotaz makléři

K prodeji, Novostavba: Byt 2+1, Brno, Brno-střed, Plynárenská

Text dotazu *
Váš telefon *
Váš e-mail
Zobrazit kontaktní informace
Odeslat
 
 
 
 

Ve schránce je 0 inzerátů.

zobrazit celou schránku
 
 

Nalezli jsme dalších 113 nemovitostí v podobné ceně.

 
 
reklama