K prodeji, Byt 1+kk, 38 m2, Kralupy nad Vltavou, Havlíčkova

 
 
 
Lokalita:
Kralupy nad Vltavou, Havlíčkova
 
 
Cena:
2 035 400 Kč / za nemovitost
 
cena za převod 2.035.400, - Kč, zbývající anuita 3.713.700, - Kč, celková cena 5.749.100 - Kč
 
Nabídněte prodejci Vaši cenu 
 
 

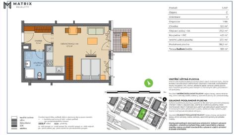
Bydlení u řeky, kde si zamilujete každý den. Prodej světlého bytu 1+kk s balkonem v Rezidenci u Vltavy Hledáte domov, který vám nabídne klid, prostor, světlo a kousek přírody na dosah ruky, ale zároveň nechcete být daleko od Prahy? Tento byt 1+kk o 38,3 m s balkonem 3,8 m. Lze realizovat dispoziční úprava na 2+kk se zachováním dostatečného prostoru. Východní orientace dodává bytu dostatek dopoledního světla. Ráno si můžete zaběhat podél řeky, odpoledne posedět v parku a o víkendu vyrazit na výlet. Přesto jste stále jen 30 minut vlakem od centra Prahy z nádraží v těsné blízkosti projektu. Co vám rezidence nabídne? Mateřskou školku přímo v areálu ideální pro mladé rodiny Sportovní hřiště a útulné náměstíčko s obchody Park u Vltavy jako stvořený pro relax, sport i romantické procházky Družstevní bydlení je chytrá cesta k vlastnímu domovu: Nemusíte řešit hypotéku. Stačí uhradit převodní částku a zbytek splácet postupně. Nízký vstupní vklad, možnost mimořádných splátek, jednoduchý převod podílu a hlavně každou splátkou jste blíž vlastnímu domovu. Finanční podmínky: Převodní poplatek: 10 000 Kč + DPH Cena k převodu: 2.035.400Kč Zůstatková anuita: 3.713.700 Kč Celková cena: 5.749.100 Kč Měsíční anuita po převzetí bytu: 21.370 Kč Dokončení výstavby: červen 2027 Cítíte, že by to mohl být váš nový domov? Ozvěte se nám rádi vám osobně vysvětlíme detaily a pomůžeme vám zjistit, zda je to ideální volba právě pro vás.

 
zobrazit více
 
 
 


Doplňující informace:

ID inzerátu ESO: 4372538
Inzerát vydán: 28.11.2025
Inzerát aktualizován: 01.12.2025
ID zakázky v RK: 245
Budova je z: Cihla
Stav: Velmi dobrý
Vlastnictví: Družstevní
Umístění: Velmi dobrý
Obytná plocha: 38 m2
Balkón: 4m2
Užitná plocha: 38 m2
Podlahová plocha: 38 m2
Energetická náročnost budovy:
B - Velmi úsporná
 
 

 
 
 

Bleskový dotaz makléři

K prodeji, Byt 1+kk, 38 m2, Kralupy nad Vltavou, Havlíčkova

Text dotazu *
Váš telefon *
Váš e-mail
Zobrazit kontaktní informace
Odeslat
 
 
 
 

Ve schránce je 0 inzerátů.

zobrazit celou schránku
 
 

Nalezli jsme dalších 2 nemovitostí v podobné ceně.

 
 
reklama